Building Summary

Data last updated on: 4/1/2026     Ownership current as of: 3/27/2026     Tax Year: 2026
REID 129287

PIN # 0833-41-9546

Location Address Property Description
818 BELVIN AVE PROP-BELVIN D L EST/TR#04 /LT#069 PT PL:000012-000066
   
Property Owner Owner's Mailing Address
SOLORZANO, JESUS;DIAZ, ADRIANA ONOFRE
100 S ADAMS ST
DURHAM NC 27703
Parcel
Buildings
Misc Improvements
Land
Deeds
Notes
Sales
Photos
Map
Building Location Address
818 BELVIN AVE
Building Description
RESFR-RES-FRM-OR-EQ
Card   of  1
Bldg Type RESIDENTIAL
Units 1
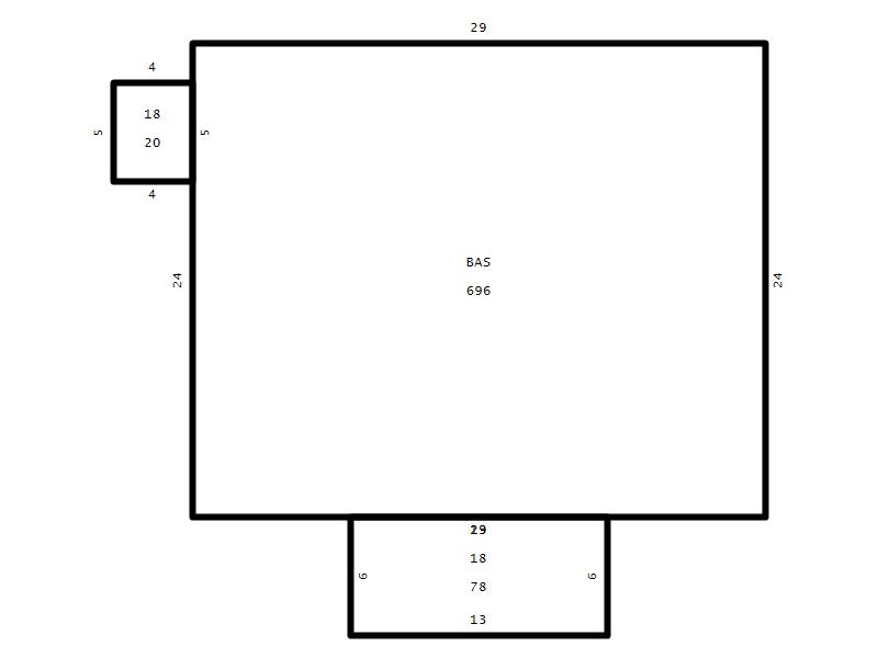
Living Area (SQFT) 696
Number of Stories 1.00
Style RAN-RANCH
Foundation 04-P-FOOTING/CRWL-SP
Exterior 08-VINYL/ALUMINUM
Const Type
Heating 06-HEAT-PUMP
Air Cond
Plumbing Baths (Full):   1
Baths (Half):   0
Extra Fixtures:   0
Total Plumbing Fixtures:   3 
Bedrooms 2
Main Body (SQFT) 696
Year Built 1950
Additions 2
Effective Year 1950
Remodeled 0
Interior Adj.
Other Features
Building Total & Improvement Details

Grade C- 95%
Percentage Complete 100
Total Adjusted Replacement Cost New $148,230
Physical Depreciation (% Bad) 0%
Depreciated Value $81,526
Economic Depreciation (% Bad) 0%
Functional Depreciation (% Bad) 0%
Total Depreciated Value $81,526
Market Area Factor 1.00
Building Value $81,526
Misc Improvements Value $111
Total Improvement Value $81,637

Assessed Land Value $78,125
   
Assessed Total Value $159,762



Addition Summary 
StoryTypeCodeArea
1.00 Covered Porch 18 78
1.00 Covered Porch 18 20
 
Other Improvements 
UnitsDescriptionItemCodeYear% BadValue
6x8 DIMENSIONS Shed (Open Pole) 1950 75 111
 


Building Sketch
Photograph
Building Sketch Building Photo
(Click sketch for bigger image)




Copyright © 2022 Durham County, North Carolina.