Building Summary

Data last updated on: 4/2/2026     Ownership current as of: 3/30/2026     Tax Year: 2026
REID 129476

PIN # 0832-69-4401

Location Address Property Description
916 WARING ST NORTHBROOK/SEC:02A/LT#08 PL:000071-000073
   
Property Owner Owner's Mailing Address
HAVENS, TIMOTHY RAE
916 WARING ST
DURHAM NC 27704
Parcel
Buildings
Misc Improvements
Land
Deeds
Notes
Sales
Photos
Map
Building Location Address
916 WARING ST
Building Description
RESMS-RES-MS-OR-EQ
Card   of  1
Bldg Type RESIDENTIAL
Units 1
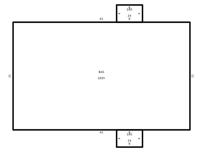
Living Area (SQFT) 1025
Number of Stories 1.00
Style RAN-RANCH
Foundation 04-P-FOOTING/CRWL-SP
Exterior 02-BRICK
Const Type
Heating 03-FORCED-HOT-AIR
Air Cond
Plumbing Baths (Full):   1
Baths (Half):   1
Extra Fixtures:   0
Total Plumbing Fixtures:   5 
Bedrooms 3
Main Body (SQFT) 1025
Year Built 1969
Additions 2
Effective Year 1969
Remodeled 0
Interior Adj.
Other Features
Building Total & Improvement Details

Grade C+5 105%
Percentage Complete 100
Total Adjusted Replacement Cost New $216,338
Physical Depreciation (% Bad) 0%
Depreciated Value $134,130
Economic Depreciation (% Bad) 0%
Functional Depreciation (% Bad) 0%
Total Depreciated Value $134,130
Market Area Factor 1.00
Building Value $134,130
Misc Improvements Value $724
Total Improvement Value $134,854

Assessed Land Value $73,125
   
Assessed Total Value $207,979



Addition Summary 
StoryTypeCodeArea
1.00 Stoop 16S 24
1.00 Stoop 16S 24
 
Other Improvements 
UnitsDescriptionItemCodeYear% BadValue
440 UNITS Concrete Slab 1969 75 724
 


Building Sketch
Photograph
Building Sketch Building Photo
(Click sketch for bigger image)




Copyright © 2022 Durham County, North Carolina.