Building Summary

Data last updated on: 4/2/2026     Ownership current as of: 3/30/2026     Tax Year: 2026
REID 129487

PIN # 0832-79-0266

Location Address Property Description
18 DURANTE PL NORTHBROOK/SEC:02A/LT#19 PL:000071-000073
   
Property Owner Owner's Mailing Address
SMITH, LAUREN BOWER
P O BOX 457
WINTER PARK FL 32790
Parcel
Buildings
Misc Improvements
Land
Deeds
Notes
Sales
Photos
Map
Building Location Address
18 DURANTE PL
Building Description
RESMS-RES-MS-OR-EQ
Card   of  1
Bldg Type RESIDENTIAL
Units 1
Living Area (SQFT) 1314
Number of Stories 1.00
Style BTS-BI/TRI/SPLT-LEVL
Foundation 04-P-FOOTING/CRWL-SP
Exterior 02-BRICK
Const Type
Heating 06-HEAT-PUMP
Air Cond
Plumbing Baths (Full):   2
Baths (Half):   0
Extra Fixtures:   0
Total Plumbing Fixtures:   6 
Bedrooms 4
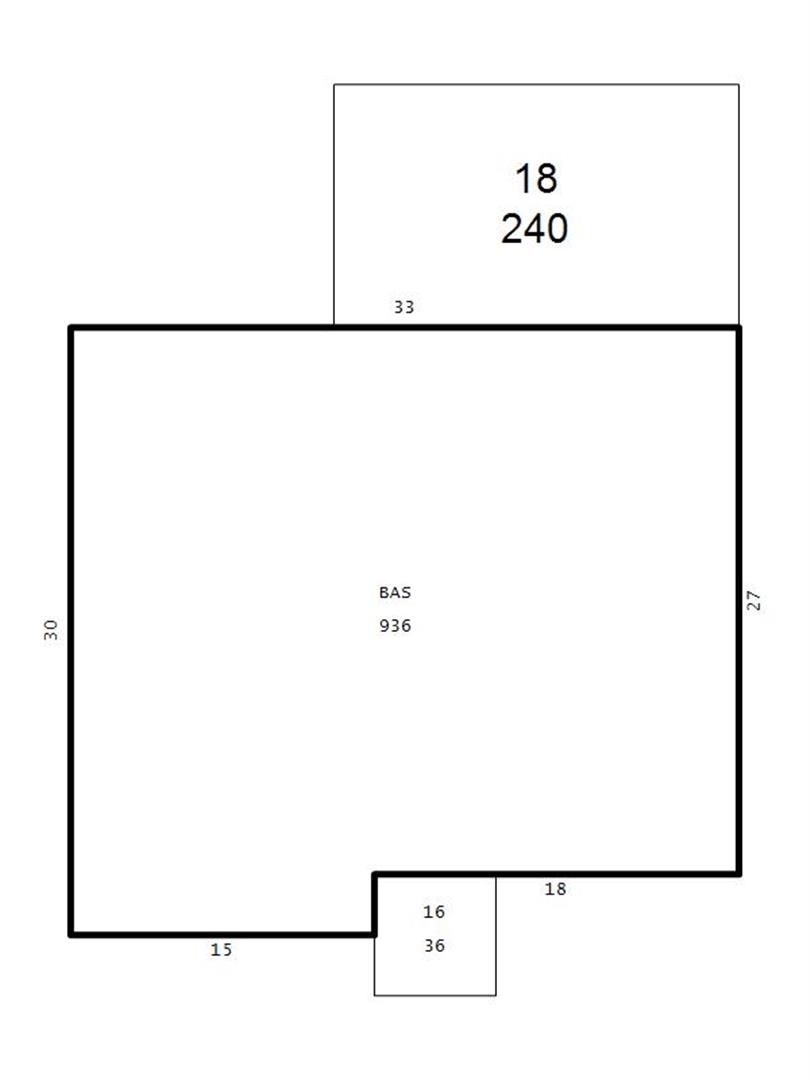
Main Body (SQFT) 936
Year Built 1969
Additions 3
Effective Year 1969
Remodeled 0
Interior Adj.
Other Features
Building Total & Improvement Details

Grade C+5 105%
Percentage Complete 100
Total Adjusted Replacement Cost New $272,106
Physical Depreciation (% Bad) 0%
Depreciated Value $223,127
Economic Depreciation (% Bad) 0%
Functional Depreciation (% Bad) 0%
Total Depreciated Value $223,127
Market Area Factor 1.00
Building Value $223,127
Misc Improvements Value $884
Total Improvement Value $224,011

Assessed Land Value $75,000
   
Assessed Total Value $299,011



Addition Summary 
StoryTypeCodeArea
1.00 Frame Deck 16 36
1.00 Covered Porch 18 240
1.00 Lower Living Area LL 378
 
Other Improvements 
UnitsDescriptionItemCodeYear% BadValue
6x8 DIMENSIONS Storage Building 1969 75 229
10x14 DIMENSIONS Storage Building 1969 75 655
 


Building Sketch
Photograph
Building Sketch Building Photo
(Click sketch for bigger image)




Copyright © 2022 Durham County, North Carolina.