Building Summary

Data last updated on: 4/2/2026     Ownership current as of: 3/30/2026     Tax Year: 2026
REID 129508

PIN # 0833-60-6234

Location Address Property Description
927 DA VINCI ST NORTHBROOK/SEC:02C/LT#10 PL:000073-000024
   
Property Owner Owner's Mailing Address
QUINTERO, EDGAR DIAZ;DIAZ-HERNANDEZ, ALEXIS ADAIR
927 DA VINCI ST
DURHAM NC 27704
Parcel
Buildings
Misc Improvements
Land
Deeds
Notes
Sales
Photos
Map
Building Location Address
927 DA VINCI ST
Building Description
RESMS-RES-MS-OR-EQ
Card   of  1
Bldg Type RESIDENTIAL
Units 1
Living Area (SQFT) 1341
Number of Stories 1.00
Style BTS-BI/TRI/SPLT-LEVL
Foundation 04-P-FOOTING/CRWL-SP
Exterior 02-BRICK
Const Type
Heating 03-FORCED-HOT-AIR
Air Cond
Plumbing Baths (Full):   2
Baths (Half):   0
Extra Fixtures:   0
Total Plumbing Fixtures:   6 
Bedrooms 4
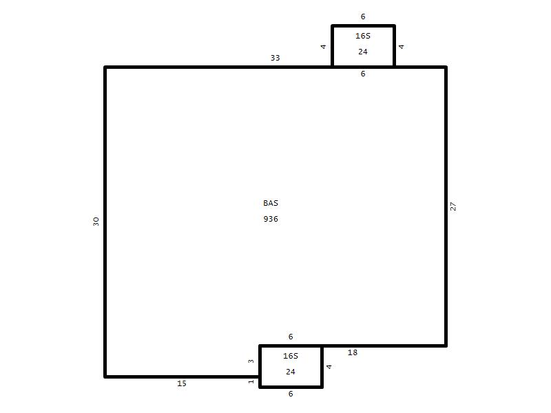
Main Body (SQFT) 936
Year Built 1969
Additions 3
Effective Year 1969
Remodeled 0
Interior Adj.
Other Features
Building Total & Improvement Details

Grade C+5 105%
Percentage Complete 100
Total Adjusted Replacement Cost New $251,704
Physical Depreciation (% Bad) 0%
Depreciated Value $231,568
Economic Depreciation (% Bad) 0%
Functional Depreciation (% Bad) 0%
Total Depreciated Value $231,568
Market Area Factor 1.00
Building Value $231,568
Misc Improvements Value $2,808
Total Improvement Value $234,376

Assessed Land Value $76,250
   
Assessed Total Value $310,626



Addition Summary 
StoryTypeCodeArea
1.00 Stoop 16S 24
1.00 Stoop 16S 24
1.00 Lower Living Area LL 405
 
Other Improvements 
UnitsDescriptionItemCodeYear% BadValue
480 SIZE Storage Building 1989 75 2808
 


Building Sketch
Photograph
Building Sketch Building Photo
(Click sketch for bigger image)




Copyright © 2022 Durham County, North Carolina.