Building Summary

Data last updated on: 4/2/2026     Ownership current as of: 3/30/2026     Tax Year: 2026
REID 129582

PIN # 0832-59-1495

Location Address Property Description
2621 GLENBROOK DR GLENBROOK/SEC:04/BLK:D/LT #09 PL:000085-000052
   
Property Owner Owner's Mailing Address
BAF ASSETS 2 LLC
3903 S CONGRESS AVE STE 40298
AUSTIN TX 78704
Parcel
Buildings
Misc Improvements
Land
Deeds
Notes
Sales
Photos
Map
Building Location Address
2621 GLENBROOK DR
Building Description
RESFR-RES-FRM-OR-EQ
Card   of  1
Bldg Type RESIDENTIAL
Units 1
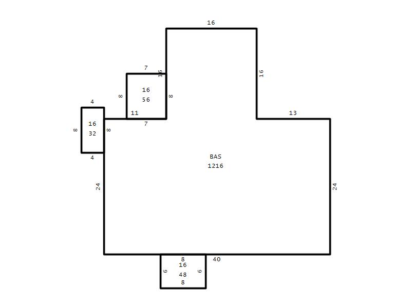
Living Area (SQFT) 1216
Number of Stories 1.00
Style RAN-RANCH
Foundation 04-P-FOOTING/CRWL-SP
Exterior 08-VINYL/ALUMINUM
Const Type
Heating 03-FORCED-HOT-AIR
Air Cond
Plumbing Baths (Full):   1
Baths (Half):   1
Extra Fixtures:   0
Total Plumbing Fixtures:   5 
Bedrooms 3
Main Body (SQFT) 1216
Year Built 1979
Additions 3
Effective Year 1979
Remodeled 0
Interior Adj.
Other Features
Building Total & Improvement Details

Grade C+5 105%
Percentage Complete 100
Total Adjusted Replacement Cost New $227,956
Physical Depreciation (% Bad) 0%
Depreciated Value $216,558
Economic Depreciation (% Bad) 0%
Functional Depreciation (% Bad) 0%
Total Depreciated Value $216,558
Market Area Factor 1.00
Building Value $216,558
Misc Improvements Value $500
Total Improvement Value $217,058

Assessed Land Value $71,875
   
Assessed Total Value $288,933



Addition Summary 
StoryTypeCodeArea
1.00 Frame Deck 16 48
1.00 Frame Deck 16 32
1.00 Frame Deck 16 56
 
Other Improvements 
UnitsDescriptionItemCodeYear% BadValue
80 UNITS Concrete Slab 2022 5 500
 


Building Sketch
Photograph
Building Sketch Building Photo
(Click sketch for bigger image)




Copyright © 2022 Durham County, North Carolina.