Building Summary

Data last updated on: 4/2/2026     Ownership current as of: 3/30/2026     Tax Year: 2026
REID 129596

PIN # 0832-59-8261

Location Address Property Description
2532 GLENBROOK DR GLENBROOK/BLK:B/SEC:01/LT #05 PL:000071-000039
   
Property Owner Owner's Mailing Address
STAR BORROWER SFR6 LP
16220 N SCOTTSDALE RD STE 450
SCOTTSDALE AZ 85254
Parcel
Buildings
Misc Improvements
Land
Deeds
Notes
Sales
Photos
Map
Building Location Address
2532 GLENBROOK DR
Building Description
RESFR-RES-FRM-OR-EQ
Card   of  1
Bldg Type RESIDENTIAL
Units 1
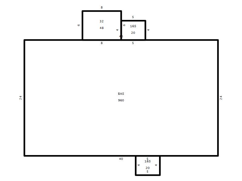
Living Area (SQFT) 960
Number of Stories 1.00
Style RAN-RANCH
Foundation 04-P-FOOTING/CRWL-SP
Exterior 09-HARD-B/CEMENTBRD
Const Type
Heating 05-PACKAGE-HEAT/COOL
Air Cond
Plumbing Baths (Full):   1
Baths (Half):   0
Extra Fixtures:   0
Total Plumbing Fixtures:   3 
Bedrooms 3
Main Body (SQFT) 960
Year Built 1971
Additions 3
Effective Year 1971
Remodeled 0
Interior Adj.
Other Features
Building Total & Improvement Details

Grade C+5 105%
Percentage Complete 100
Total Adjusted Replacement Cost New $198,909
Physical Depreciation (% Bad) 0%
Depreciated Value $165,094
Economic Depreciation (% Bad) 0%
Functional Depreciation (% Bad) 0%
Total Depreciated Value $165,094
Market Area Factor 1.00
Building Value $165,094
Misc Improvements Value
Total Improvement Value $165,094

Assessed Land Value $71,250
   
Assessed Total Value $236,344



Addition Summary 
StoryTypeCodeArea
1.00 Stoop 16S 20
1.00 Storage Utility 32 48
1.00 Stoop 16S 20
 
Other Improvements 
 


Building Sketch
Photograph
Building Sketch Building Photo
(Click sketch for bigger image)




Copyright © 2022 Durham County, North Carolina.