Building Summary

Data last updated on: 4/1/2026     Ownership current as of: 3/27/2026     Tax Year: 2026
REID 129798

PIN # 0833-54-6003

Location Address Property Description
1110 ALLGOOD ST RIDDLE PRK/SEC:02/LT#42 PL:000124-000014
   
Property Owner Owner's Mailing Address
CHAVEZ, JOSE A SOLORZANO;SOLORZANO, EYBY D SOLORZANO DE
1110 ALLGOOD ST
DURHAM NC 27704
Parcel
Buildings
Misc Improvements
Land
Deeds
Notes
Sales
Photos
Map
Building Location Address
1110 ALLGOOD ST
Building Description
RESFR-RES-FRM-OR-EQ
Card   of  1
Bldg Type RESIDENTIAL
Units 1
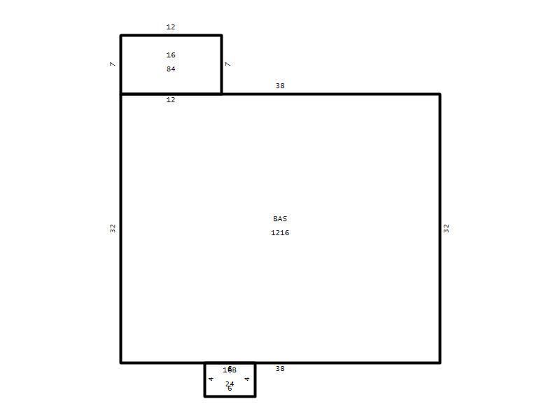
Living Area (SQFT) 1216
Number of Stories 1.00
Style RAN-RANCH
Foundation 03-CONTINOUS-SLAB
Exterior 09-HARD-B/CEMENTBRD
Const Type
Heating 06-HEAT-PUMP
Air Cond
Plumbing Baths (Full):   2
Baths (Half):   0
Extra Fixtures:   0
Total Plumbing Fixtures:   6 
Bedrooms 3
Main Body (SQFT) 1216
Year Built 1991
Additions 2
Effective Year 1991
Remodeled 0
Interior Adj.
Other Features
Building Total & Improvement Details

Grade C- 95%
Percentage Complete 100
Total Adjusted Replacement Cost New $205,075
Physical Depreciation (% Bad) 0%
Depreciated Value $178,415
Economic Depreciation (% Bad) 0%
Functional Depreciation (% Bad) 0%
Total Depreciated Value $178,415
Market Area Factor 1.00
Building Value $178,415
Misc Improvements Value
Total Improvement Value $178,415

Assessed Land Value $75,000
   
Assessed Total Value $253,415



Addition Summary 
StoryTypeCodeArea
1.00 Frame Deck 16 84
1.00 Concrete Slab 16B 24
 
Other Improvements 
 


Building Sketch
Photograph
Building Sketch Building Photo
(Click sketch for bigger image)




Copyright © 2022 Durham County, North Carolina.