Building Summary

Data last updated on: 3/13/2026     Ownership current as of: 3/9/2026     Tax Year: 2026
REID 129867

PIN # 0833-71-8082

Location Address Property Description
2721 THELMA ST PROP-BAILEY THOMAS A/LT#3 8/LT#37 S 1/2 PL:00031B-000071
   
Property Owner Owner's Mailing Address
VALERIO, TITO MEDINA;VENTURA, ARELI LOPEZ
2721 THELMA ST
DURHAM NC 27704
Parcel
Buildings
Misc Improvements
Land
Deeds
Notes
Sales
Photos
Map
Building Location Address
2721 THELMA ST
Building Description
RESFR-RES-FRM-OR-EQ
Card   of  1
Bldg Type RESIDENTIAL
Units 1
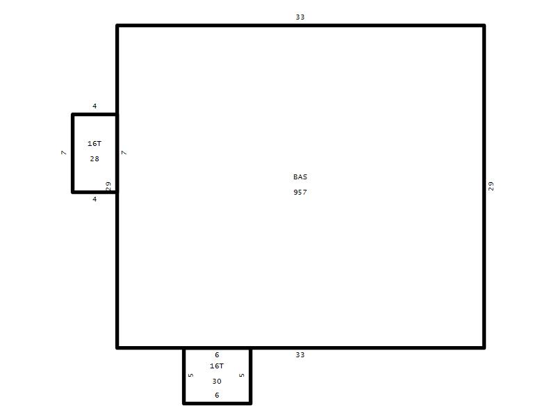
Living Area (SQFT) 957
Number of Stories 1.00
Style RAN-RANCH
Foundation 04-P-FOOTING/CRWL-SP
Exterior 08-VINYL/ALUMINUM
Const Type
Heating 05-PACKAGE-HEAT/COOL
Air Cond
Plumbing Baths (Full):   1
Baths (Half):   0
Extra Fixtures:   0
Total Plumbing Fixtures:   3 
Bedrooms 3
Main Body (SQFT) 957
Year Built 1972
Additions 2
Effective Year 1972
Remodeled 0
Interior Adj.
Other Features
Building Total & Improvement Details

Grade C- 95%
Percentage Complete 100
Total Adjusted Replacement Cost New $184,098
Physical Depreciation (% Bad) 0%
Depreciated Value $115,982
Economic Depreciation (% Bad) 0%
Functional Depreciation (% Bad) 0%
Total Depreciated Value $115,982
Market Area Factor 1.00
Building Value $115,982
Misc Improvements Value
Total Improvement Value $115,982

Assessed Land Value $82,500
   
Assessed Total Value $198,482



Addition Summary 
StoryTypeCodeArea
1.00 Terrace/Raised Patio 16T 30
1.00 Terrace/Raised Patio 16T 28
 
Other Improvements 
 


Building Sketch
Photograph
Building Sketch Building Photo
(Click sketch for bigger image)




Copyright © 2022 Durham County, North Carolina.