Building Summary

Data last updated on: 4/2/2026     Ownership current as of: 3/30/2026     Tax Year: 2026
REID 129973

PIN # 0833-70-8526

Location Address Property Description
2605 KINGDOM WAY DEER RUN/SEC:03/PH:B/LT# 17 PL:000118-000196
   
Property Owner Owner's Mailing Address
BAF ASSETS 2 LLC
3903 S CONGRESS AVE STE 40298
AUSTIN TX 78704
Parcel
Buildings
Misc Improvements
Land
Deeds
Notes
Sales
Photos
Map
Building Location Address
2605 KINGDOM WAY
Building Description
RESFR-RES-FRM-OR-EQ
Card   of  1
Bldg Type RESIDENTIAL
Units 1
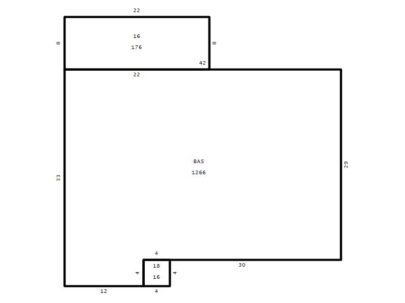
Living Area (SQFT) 1266
Number of Stories 1.00
Style RAN-RANCH
Foundation 03-CONTINOUS-SLAB
Exterior 08-VINYL/ALUMINUM
Const Type
Heating 05-PACKAGE-HEAT/COOL
Air Cond
Plumbing Baths (Full):   2
Baths (Half):   0
Extra Fixtures:   0
Total Plumbing Fixtures:   6 
Bedrooms 3
Main Body (SQFT) 1266
Year Built 1988
Additions 2
Effective Year 1988
Remodeled 0
Interior Adj.
Other Features
Building Total & Improvement Details

Grade C- 95%
Percentage Complete 100
Total Adjusted Replacement Cost New $216,081
Physical Depreciation (% Bad) 0%
Depreciated Value $185,830
Economic Depreciation (% Bad) 0%
Functional Depreciation (% Bad) 0%
Total Depreciated Value $185,830
Market Area Factor 1.00
Building Value $185,830
Misc Improvements Value
Total Improvement Value $185,830

Assessed Land Value $73,750
   
Assessed Total Value $259,580



Addition Summary 
StoryTypeCodeArea
1.00 Frame Deck 16 176
1.00 Covered Porch 18 16
 
Other Improvements 
 


Building Sketch
Photograph
Building Sketch Building Photo
(Click sketch for bigger image)




Copyright © 2022 Durham County, North Carolina.