Building Summary

Data last updated on: 4/2/2026     Ownership current as of: 3/30/2026     Tax Year: 2026
REID 129983

PIN # 0833-70-7155

Location Address Property Description
2505 KINGDOM WAY DEER RUN/SEC:03/PH:A/LT# 24 PL:000118-000122
   
Property Owner Owner's Mailing Address
BAF ASSETS 2 LLC
3903 S CONGRESS AVE STE 40298
AUSTIN TX 78704
Parcel
Buildings
Misc Improvements
Land
Deeds
Notes
Sales
Photos
Map
Building Location Address
2505 KINGDOM WAY
Building Description
RESFR-RES-FRM-OR-EQ
Card   of  1
Bldg Type RESIDENTIAL
Units 1
Living Area (SQFT) 1428
Number of Stories 2.00
Style CAP-CAPE-COD
Foundation 03-CONTINOUS-SLAB
Exterior 08-VINYL/ALUMINUM
Const Type
Heating 05-PACKAGE-HEAT/COOL
Air Cond
Plumbing Baths (Full):   2
Baths (Half):   0
Extra Fixtures:   0
Total Plumbing Fixtures:   6 
Bedrooms 3
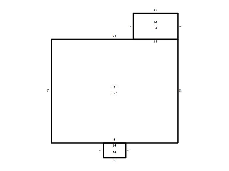
Main Body (SQFT) 952
Year Built 1988
Additions 3
Effective Year 1988
Remodeled 0
Interior Adj.
Other Features
Building Total & Improvement Details

Grade C- 95%
Percentage Complete 100
Total Adjusted Replacement Cost New $229,663
Physical Depreciation (% Bad) 0%
Depreciated Value $197,510
Economic Depreciation (% Bad) 0%
Functional Depreciation (% Bad) 0%
Total Depreciated Value $197,510
Market Area Factor 1.00
Building Value $197,510
Misc Improvements Value
Total Improvement Value $197,510

Assessed Land Value $73,125
   
Assessed Total Value $270,635



Addition Summary 
StoryTypeCodeArea
1.00 Frame Deck 16 84
1.00 Covered Porch 18 24
1.00 Res Frame 2Nd Flr FR02 476
 
Other Improvements 
 


Building Sketch
Photograph
Building Sketch Building Photo
(Click sketch for bigger image)




Copyright © 2022 Durham County, North Carolina.