Building Summary

Data last updated on: 4/2/2026     Ownership current as of: 3/30/2026     Tax Year: 2026
REID 130893

PIN # 0840-09-2110

Location Address Property Description
3009 BRYANT ST PROP-WOODS LARKIN/LT#20-2 1 PL:00005A-000005
   
Property Owner Owner's Mailing Address
SL FRASHER LLC
3903 W CORNWALLIS DR
DURHAM NC 27705
Parcel
Buildings
Misc Improvements
Land
Deeds
Notes
Sales
Photos
Map
Building Location Address
3009 BRYANT ST
Building Description
RESFR-RES-FRM-OR-EQ
Card   of  1
Bldg Type RESIDENTIAL
Units 1
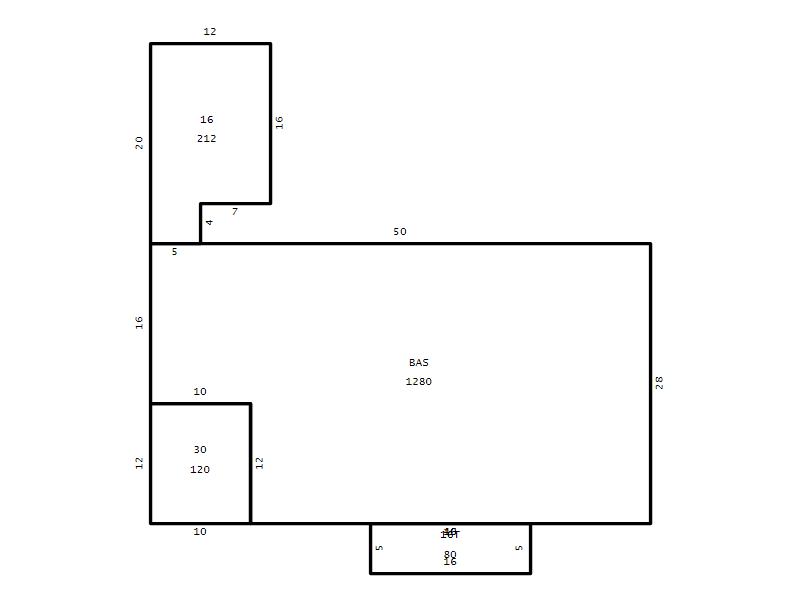
Living Area (SQFT) 1280
Number of Stories 1.00
Style RAN-RANCH
Foundation 04-P-FOOTING/CRWL-SP
Exterior 06-CONCRETE-BLOCK
Const Type
Heating 05-PACKAGE-HEAT/COOL
Air Cond
Plumbing Baths (Full):   1
Baths (Half):   0
Extra Fixtures:   0
Total Plumbing Fixtures:   3 
Bedrooms 3
Main Body (SQFT) 1280
Year Built 1960
Additions 3
Effective Year 1960
Remodeled 0
Interior Adj.
Other Features
Building Total & Improvement Details

Grade C+5 105%
Percentage Complete 100
Total Adjusted Replacement Cost New $249,310
Physical Depreciation (% Bad) 0%
Depreciated Value $137,120
Economic Depreciation (% Bad) 0%
Functional Depreciation (% Bad) 0%
Total Depreciated Value $137,120
Market Area Factor 1.00
Building Value $137,120
Misc Improvements Value
Total Improvement Value $137,120

Assessed Land Value $93,800
   
Assessed Total Value $230,920



Addition Summary 
StoryTypeCodeArea
1.00 Frame Deck 16 212
1.00 Terrace/Raised Patio 16T 80
1.00 Carport 30 120
 
Other Improvements 
UnitsDescriptionItemCodeYear% BadValue
240 SIZE Shed Personal Property 1960 75
 


Building Sketch
Photograph
Building Sketch Building Photo
(Click sketch for bigger image)




Copyright © 2022 Durham County, North Carolina.