Building Summary

Data last updated on: 4/2/2026     Ownership current as of: 3/30/2026     Tax Year: 2026
REID 130999

PIN # 0840-09-5538

Location Address Property Description
309 EAST END AVE PROP-WRIGHT R H/LT#090-09 1 PL:00006B-000179
   
Property Owner Owner's Mailing Address
BOYD, REBECA ANN
12013 TALIESIN PL UNIT 33
RESTON VA 20190
Parcel
Buildings
Misc Improvements
Land
Deeds
Notes
Sales
Photos
Map
Building Location Address
309 EAST END AVE
Building Description
RESFR-RES-FRM-OR-EQ
Card   of  1
Bldg Type RESIDENTIAL
Units 1
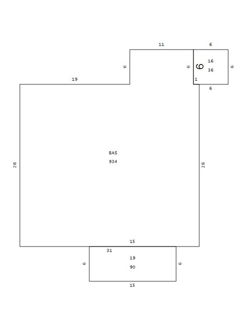
Living Area (SQFT) 934
Number of Stories 1.00
Style RAN-RANCH
Foundation 04-P-FOOTING/CRWL-SP
Exterior 04-STUCCO
Const Type
Heating 05-PACKAGE-HEAT/COOL
Air Cond
Plumbing Baths (Full):   1
Baths (Half):   0
Extra Fixtures:   0
Total Plumbing Fixtures:   3 
Bedrooms 3
Main Body (SQFT) 934
Year Built 1945
Additions 2
Effective Year 1945
Remodeled 0
Interior Adj.
Other Features
Building Total & Improvement Details

Grade C+5 105%
Percentage Complete 100
Total Adjusted Replacement Cost New $198,656
Physical Depreciation (% Bad) 0%
Depreciated Value $129,126
Economic Depreciation (% Bad) 0%
Functional Depreciation (% Bad) 0%
Total Depreciated Value $129,126
Market Area Factor 1.00
Building Value $129,126
Misc Improvements Value $199
Total Improvement Value $129,325

Assessed Land Value $81,900
   
Assessed Total Value $211,225



Addition Summary 
StoryTypeCodeArea
1.00 Screen Porch 19 90
1.00 Frame Deck 16 36
 
Other Improvements 
UnitsDescriptionItemCodeYear% BadValue
10x10 DIMENSIONS Enclosed Shed 1945 75 199
 


Building Sketch
Photograph
Building Sketch Building Photo
(Click sketch for bigger image)




Copyright © 2022 Durham County, North Carolina.