Building Summary

Data last updated on: 4/2/2026     Ownership current as of: 3/30/2026     Tax Year: 2026
REID 131946

PIN # 0841-44-5340

Location Address Property Description
104 HICKORY GLEN LN HICKORY GLEN/PH:1A/LT#06 PL:000131-000126
   
Property Owner Owner's Mailing Address
HENSLEY, AYSUN BUREU;LEDFORD, JOSEPH LEE
104 HICKORY GLEN LN
DURHAM NC 27703
Parcel
Buildings
Misc Improvements
Land
Deeds
Notes
Sales
Photos
Map
Building Location Address
104 HICKORY GLEN LN
Building Description
RESFR-RES-FRM-OR-EQ
Card   of  1
Bldg Type RESIDENTIAL
Units 1
Living Area (SQFT) 1356
Number of Stories 1.50
Style RAN-RANCH
Foundation 04-P-FOOTING/CRWL-SP
Exterior 08-VINYL/ALUMINUM
Const Type
Heating 05-PACKAGE-HEAT/COOL
Air Cond
Plumbing Baths (Full):   2
Baths (Half):   0
Extra Fixtures:   0
Total Plumbing Fixtures:   6 
Bedrooms 3
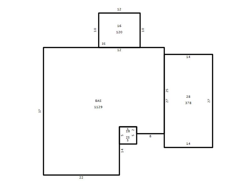
Main Body (SQFT) 1129
Year Built 1999
Additions 4
Effective Year 1999
Remodeled 0
Interior Adj.
Other Features
Building Total & Improvement Details

Grade C+5 105%
Percentage Complete 100
Total Adjusted Replacement Cost New $282,710
Physical Depreciation (% Bad) 0%
Depreciated Value $217,687
Economic Depreciation (% Bad) 0%
Functional Depreciation (% Bad) 0%
Total Depreciated Value $217,687
Market Area Factor 1.00
Building Value $217,687
Misc Improvements Value
Total Improvement Value $217,687

Assessed Land Value $112,800
   
Assessed Total Value $330,487



Addition Summary 
StoryTypeCodeArea
1.00 Frame Deck 16 120
1.00 Covered Porch 18 25
1.00 Garage 28 378
1.00 Res Frm 2Nd Flr Over Garg FR02 227
 
Other Improvements 
 


Building Sketch
Photograph
Building Sketch Building Photo
(Click sketch for bigger image)




Copyright © 2022 Durham County, North Carolina.