Building Summary

Data last updated on: 4/2/2026     Ownership current as of: 3/30/2026     Tax Year: 2026
REID 131948

PIN # 0841-44-7262

Location Address Property Description
101 HICKORY GLEN LN HICKORY GLEN/PH:1A/LT#08 PL:000131-000126
   
Property Owner Owner's Mailing Address
TINGLING, MILTON A
101 HICKORY GLEN LN
DURHAM NC 27703
Parcel
Buildings
Misc Improvements
Land
Deeds
Notes
Sales
Photos
Map
Building Location Address
101 HICKORY GLEN LN
Building Description
RESFR-RES-FRM-OR-EQ
Card   of  1
Bldg Type RESIDENTIAL
Units 1
Living Area (SQFT) 2196
Number of Stories 1.00
Style BTS-BI/TRI/SPLT-LEVL
Foundation 06-BASEMENT
Exterior 08-VINYL/ALUMINUM
Const Type
Heating 05-PACKAGE-HEAT/COOL
Air Cond
Plumbing Baths (Full):   3
Baths (Half):   0
Extra Fixtures:   0
Total Plumbing Fixtures:   9 
Bedrooms 3
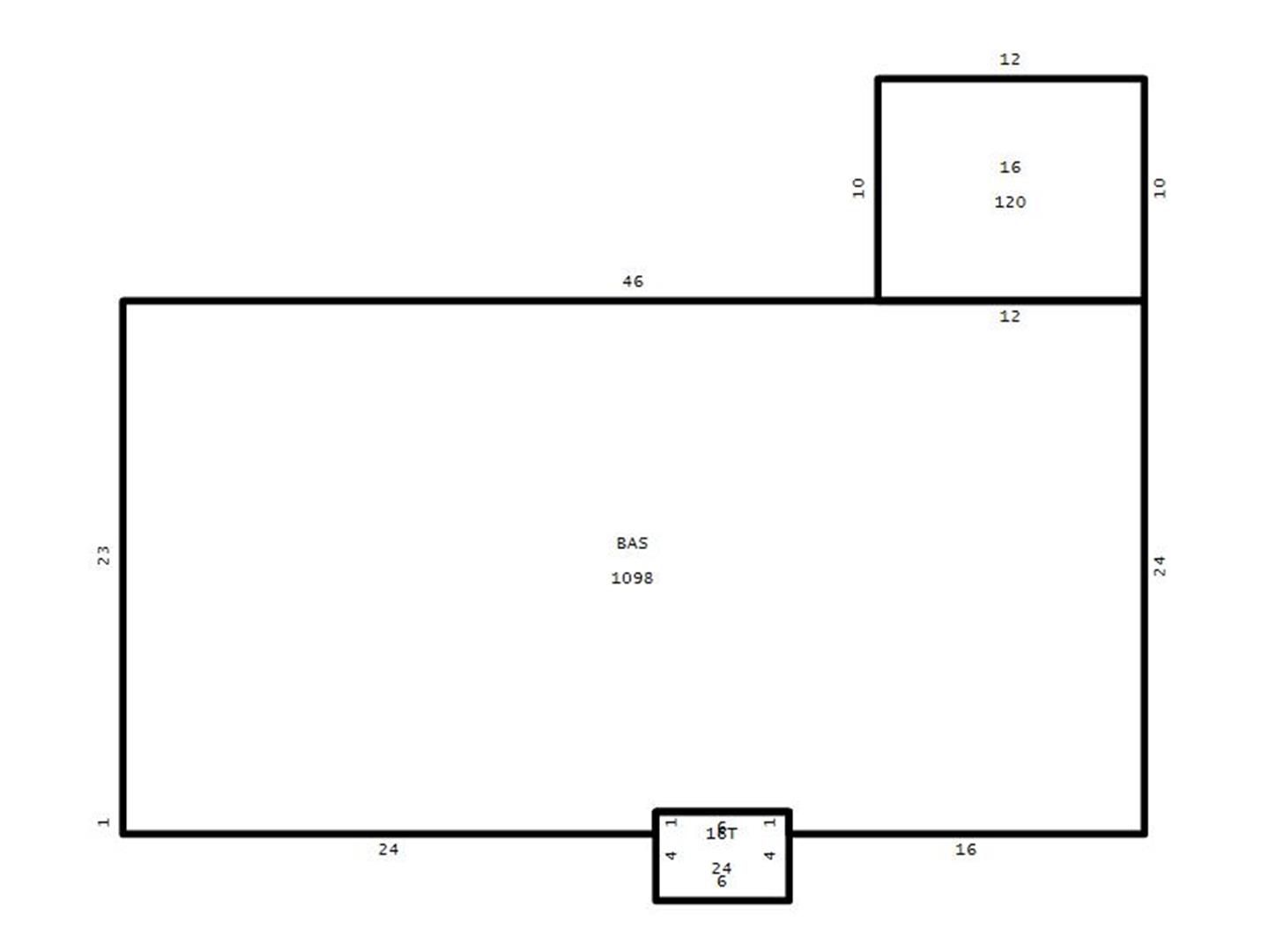
Main Body (SQFT) 1098
Year Built 1995
Additions 3
Effective Year 1995
Remodeled 0
Interior Adj.
Other Features
Building Total & Improvement Details

Grade C+5 105%
Percentage Complete 100
Total Adjusted Replacement Cost New $357,898
Physical Depreciation (% Bad) 0%
Depreciated Value $293,476
Economic Depreciation (% Bad) 0%
Functional Depreciation (% Bad) 0%
Total Depreciated Value $293,476
Market Area Factor 1.00
Building Value $293,476
Misc Improvements Value $21,931
Total Improvement Value $315,407

Assessed Land Value $115,200
   
Assessed Total Value $430,607



Addition Summary 
StoryTypeCodeArea
1.00 Frame Deck 16 120
1.00 Terrace/Raised Patio 16T 24
1.00 Lower Living Area LL 1098
 
Other Improvements 
UnitsDescriptionItemCodeYear% BadValue
576 SIZE Garage Frame 2000 45 16898
10x12 DIMENSIONS Storage Building 2000 0 2995
8x10 DIMENSIONS Storage Building 2000 0 2038
 


Building Sketch
Photograph
Building Sketch Building Photo
(Click sketch for bigger image)




Copyright © 2022 Durham County, North Carolina.