Building Summary

Data last updated on: 4/2/2026     Ownership current as of: 3/30/2026     Tax Year: 2026
REID 131973

PIN # 0841-42-5547

Location Address Property Description
228 HICKORY GLEN LN HICKORY GLEN/PH:1A/LT#33 PL:000131-000126
   
Property Owner Owner's Mailing Address
MORTENSEN, GARRETT L;JOHNSON, ALEX MELAIN
228 HICKORY GLEN LN
DURHAM NC 27703
Parcel
Buildings
Misc Improvements
Land
Deeds
Notes
Sales
Photos
Map
Building Location Address
228 HICKORY GLEN LN
Building Description
RESFR-RES-FRM-OR-EQ
Card   of  1
Bldg Type RESIDENTIAL
Units 1
Living Area (SQFT) 2250
Number of Stories 1.00
Style BTS-BI/TRI/SPLT-LEVL
Foundation 06-BASEMENT
Exterior 08-VINYL/ALUMINUM
Const Type
Heating 05-PACKAGE-HEAT/COOL
Air Cond
Plumbing Baths (Full):   3
Baths (Half):   0
Extra Fixtures:   0
Total Plumbing Fixtures:   9 
Bedrooms 4
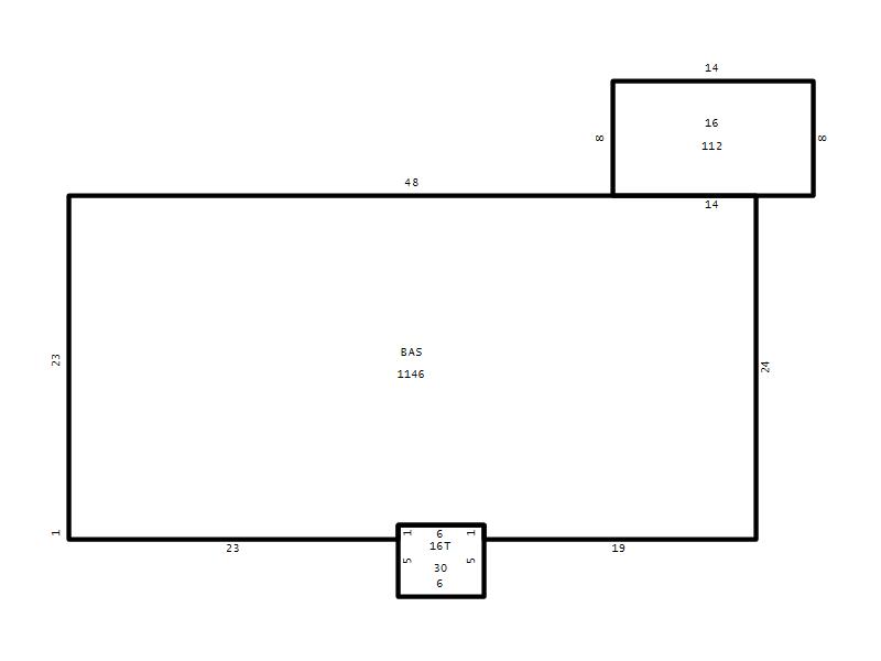
Main Body (SQFT) 1146
Year Built 1995
Additions 3
Effective Year 1995
Remodeled 0
Interior Adj.
Other Features
Building Total & Improvement Details

Grade C+5 105%
Percentage Complete 100
Total Adjusted Replacement Cost New $364,976
Physical Depreciation (% Bad) 0%
Depreciated Value $299,280
Economic Depreciation (% Bad) 0%
Functional Depreciation (% Bad) 0%
Total Depreciated Value $299,280
Market Area Factor 1.00
Building Value $299,280
Misc Improvements Value
Total Improvement Value $299,280

Assessed Land Value $169,728
   
Assessed Total Value $469,008



Addition Summary 
StoryTypeCodeArea
1.00 Frame Deck 16 112
1.00 Terrace/Raised Patio 16T 30
1.00 Lower Living Area LL 1104
 
Other Improvements 
 


Building Sketch
Photograph
Building Sketch Building Photo
(Click sketch for bigger image)




Copyright © 2022 Durham County, North Carolina.