Building Summary

Data last updated on: 4/2/2026     Ownership current as of: 3/30/2026     Tax Year: 2026
REID 131991

PIN # 0841-43-9771

Location Address Property Description
207 RUBY RIDGE RD HICKORY GLEN/PH:1B/LT#51 PL:000144-000134
   
Property Owner Owner's Mailing Address
SUNBELT INVESTORS ASSET COMPANY LLC
3903 S CONGRESS AVE STE 40298
AUSTIN TX 78704
Parcel
Buildings
Misc Improvements
Land
Deeds
Notes
Sales
Photos
Map
Building Location Address
207 RUBY RIDGE RD
Building Description
RESFR-RES-FRM-OR-EQ
Card   of  1
Bldg Type RESIDENTIAL
Units 1
Living Area (SQFT) 1127
Number of Stories 1.00
Style RAN-RANCH
Foundation 03-CONTINOUS-SLAB
Exterior 08-VINYL/ALUMINUM
Const Type
Heating 05-PACKAGE-HEAT/COOL
Air Cond
Plumbing Baths (Full):   2
Baths (Half):   0
Extra Fixtures:   0
Total Plumbing Fixtures:   6 
Bedrooms 3
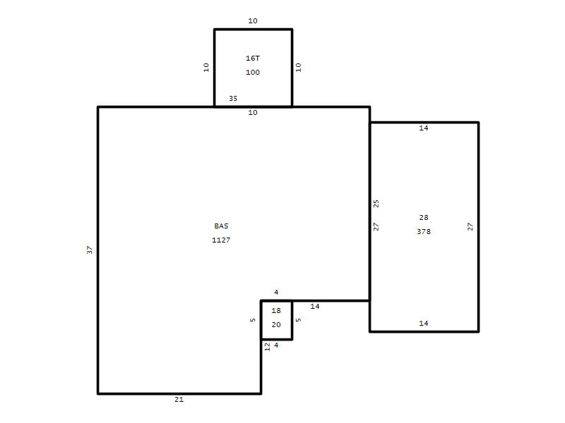
Main Body (SQFT) 1127
Year Built 2000
Additions 4
Effective Year 2000
Remodeled 0
Interior Adj.
Other Features
Building Total & Improvement Details

Grade C+5 105%
Percentage Complete 100
Total Adjusted Replacement Cost New $259,504
Physical Depreciation (% Bad) 0%
Depreciated Value $215,388
Economic Depreciation (% Bad) 0%
Functional Depreciation (% Bad) 0%
Total Depreciated Value $215,388
Market Area Factor 1.00
Building Value $215,388
Misc Improvements Value
Total Improvement Value $215,388

Assessed Land Value $96,000
   
Assessed Total Value $311,388



Addition Summary 
StoryTypeCodeArea
1.00 Terrace/Raised Patio 16T 100
1.00 Covered Porch 18 20
1.00 Garage 28 378
1.00 Attic Unfinished 08 189
 
Other Improvements 
 


Building Sketch
Photograph
Building Sketch Building Photo
(Click sketch for bigger image)




Copyright © 2022 Durham County, North Carolina.