Building Summary

Data last updated on: 4/2/2026     Ownership current as of: 3/30/2026     Tax Year: 2026
REID 132045

PIN # 0840-59-7719

Location Address Property Description
924 LYNN RD PROP-MAAS RICHARD PRESTON /TR#01 PL:000108-000114
   
Property Owner Owner's Mailing Address
CARDONA, DANERI AUSBERTO BARAHONA
924 LYNN RD
DURHAM NC 27703
Parcel
Buildings
Misc Improvements
Land
Deeds
Notes
Sales
Photos
Map
Building Location Address
924 LYNN RD
Building Description
RESFR-RES-FRM-OR-EQ
Card   of  1
Bldg Type RESIDENTIAL
Units 1
Living Area (SQFT) 1608
Number of Stories 2.00
Style CNT-CONTEMPORARY
Foundation 04-P-FOOTING/CRWL-SP
Exterior 09-HARD-B/CEMENTBRD
Const Type
Heating 05-PACKAGE-HEAT/COOL
Air Cond
Plumbing Baths (Full):   2
Baths (Half):   1
Extra Fixtures:   0
Total Plumbing Fixtures:   8 
Bedrooms 3
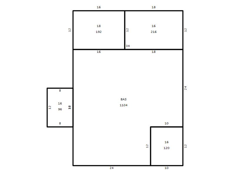
Main Body (SQFT) 1104
Year Built 1984
Additions 5
Effective Year 1984
Remodeled 0
Interior Adj.
Other Features
Building Total & Improvement Details

Grade C+15 115%
Percentage Complete 100
Total Adjusted Replacement Cost New $348,112
Physical Depreciation (% Bad) 0%
Depreciated Value $187,980
Economic Depreciation (% Bad) 0%
Functional Depreciation (% Bad) 0%
Total Depreciated Value $187,980
Market Area Factor 1.00
Building Value $187,980
Misc Improvements Value
Total Improvement Value $187,980

Assessed Land Value $237,840
   
Assessed Total Value $425,820



Addition Summary 
StoryTypeCodeArea
1.00 Frame Deck 16 96
1.00 Covered Porch 18 192
1.00 Frame Deck 16 216
1.00 Frame Deck 16 120
1.00 Res Frame 2Nd Flr FR02 504
 
Other Improvements 
 


Building Sketch
Photograph
Building Sketch Building Photo
(Click sketch for bigger image)




Copyright © 2022 Durham County, North Carolina.