Building Summary

Data last updated on: 4/2/2026     Ownership current as of: 3/30/2026     Tax Year: 2026
REID 132051

PIN # 0841-60-3069

Location Address Property Description
802 LYNN RD PROP-HURSEY STREET/LYNN R D DEV/LT#03 PL:000021-000193
   
Property Owner Owner's Mailing Address
REYHANOGLU, ILYAS;ROGERS, AMATULLAH
802 LYNN RD
DURHAM NC 27703
Parcel
Buildings
Misc Improvements
Land
Deeds
Notes
Sales
Photos
Map
Building Location Address
802 LYNN RD
Building Description
RESFR-RES-FRM-OR-EQ
Card   of  1
Bldg Type RESIDENTIAL
Units 1
Living Area (SQFT) 2758
Number of Stories 3.00
Style CON-CONVENTIONAL
Foundation 04-P-FOOTING/CRWL-SP
Exterior 09-HARD-B/CEMENTBRD
Const Type
Heating 05-PACKAGE-HEAT/COOL
Air Cond
Plumbing Baths (Full):   2
Baths (Half):   1
Extra Fixtures:   0
Total Plumbing Fixtures:   8 
Bedrooms 3
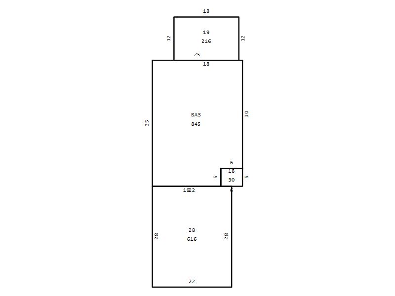
Main Body (SQFT) 845
Year Built 2018
Additions 6
Effective Year 2018
Remodeled 0
Interior Adj.
Other Features
Building Total & Improvement Details

Grade C+ 110%
Percentage Complete 100
Total Adjusted Replacement Cost New $477,478
Physical Depreciation (% Bad) 0%
Depreciated Value $444,055
Economic Depreciation (% Bad) 0%
Functional Depreciation (% Bad) 0%
Total Depreciated Value $444,055
Market Area Factor 1.00
Building Value $444,055
Misc Improvements Value
Total Improvement Value $444,055

Assessed Land Value $101,250
   
Assessed Total Value $545,305



Addition Summary 
StoryTypeCodeArea
1.00 Covered Porch 18 30
1.00 Screen Porch 19 216
1.00 Garage 28 616
1.00 Res Frame 2Nd Flr FR02 875
1.00 Res Frm 2Nd Flr Over Garg FR02 616
1.00 Res Frame 3Rd Flr FR03 422
 
Other Improvements 
 


Building Sketch
Photograph
Building Sketch Building Photo
(Click sketch for bigger image)




Copyright © 2022 Durham County, North Carolina.