Building Summary

Data last updated on: 4/2/2026     Ownership current as of: 3/30/2026     Tax Year: 2026
REID 132065

PIN # 0840-69-1529

Location Address Property Description
906 LYNN RD PROP-BAKER ALVIN E/LT#03 PL:000052-000057
   
Property Owner Owner's Mailing Address
LEON, ERIKA PAEZ
106 LYNN RD
DURHAM NC 27703
Parcel
Buildings
Misc Improvements
Land
Deeds
Notes
Sales
Photos
Map
Building Location Address
906 LYNN RD
Building Description
RESFR-RES-FRM-OR-EQ
Card   of  1
Bldg Type RESIDENTIAL
Units 1
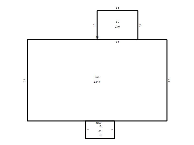
Living Area (SQFT) 1344
Number of Stories 1.00
Style RAN-RANCH
Foundation 04-P-FOOTING/CRWL-SP
Exterior 08-VINYL/ALUMINUM
Const Type
Heating 05-PACKAGE-HEAT/COOL
Air Cond
Plumbing Baths (Full):   2
Baths (Half):   0
Extra Fixtures:   0
Total Plumbing Fixtures:   6 
Bedrooms 3
Main Body (SQFT) 1344
Year Built 1996
Additions 2
Effective Year 1996
Remodeled 0
Interior Adj.
Other Features
Building Total & Improvement Details

Grade C- 95%
Percentage Complete 100
Total Adjusted Replacement Cost New $232,102
Physical Depreciation (% Bad) 0%
Depreciated Value $174,076
Economic Depreciation (% Bad) 0%
Functional Depreciation (% Bad) 0%
Total Depreciated Value $174,076
Market Area Factor 1.00
Building Value $174,076
Misc Improvements Value $148
Total Improvement Value $174,224

Assessed Land Value $110,250
   
Assessed Total Value $284,474



Addition Summary 
StoryTypeCodeArea
1.00 Covered Porch 18 60
1.00 Frame Deck 16 140
 
Other Improvements 
UnitsDescriptionItemCodeYear% BadValue
8x8 DIMENSIONS Shed (Open Pole) 1996 75 148
 


Building Sketch
Photograph
Building Sketch Building Photo
(Click sketch for bigger image)




Copyright © 2022 Durham County, North Carolina.