Building Summary

Data last updated on: 4/2/2026     Ownership current as of: 3/30/2026     Tax Year: 2026
REID 132102

PIN # 0841-51-4384

Location Address Property Description
623 SYBIL DR CEDAR HILLS/LT#08-09 PL:000034-000027
   
Property Owner Owner's Mailing Address
GORENCE, ANDREW;GORENCE, KIMBERLY A
623 SYBIL DR
DURHAM NC 27703
Parcel
Buildings
Misc Improvements
Land
Deeds
Notes
Sales
Photos
Map
Building Location Address
623 SYBIL DR
Building Description
RESMS-RES-MS-OR-EQ
Card   of  1
Bldg Type RESIDENTIAL
Units 1
Living Area (SQFT) 1189
Number of Stories 1.00
Style RAN-RANCH
Foundation 04-P-FOOTING/CRWL-SP
Exterior 02-BRICK
Const Type
Heating 05-PACKAGE-HEAT/COOL
Air Cond
Plumbing Baths (Full):   1
Baths (Half):   1
Extra Fixtures:   0
Total Plumbing Fixtures:   5 
Bedrooms 3
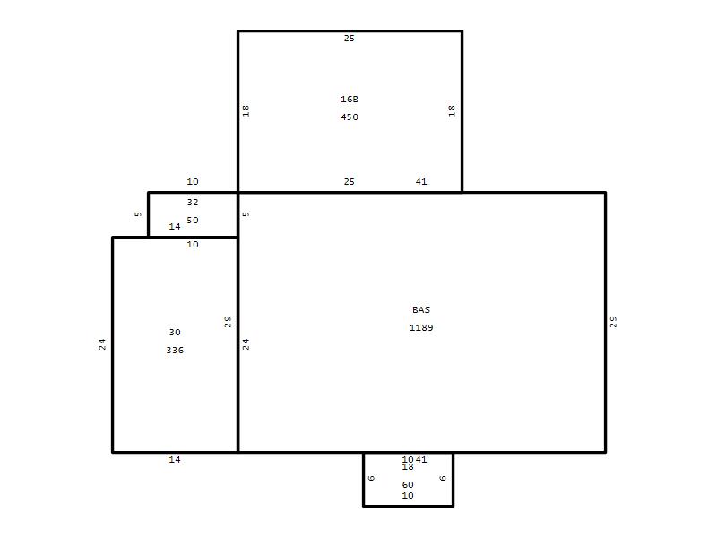
Main Body (SQFT) 1189
Year Built 1963
Additions 4
Effective Year 1963
Remodeled 0
Interior Adj.
Other Features
Building Total & Improvement Details

Grade C 100%
Percentage Complete 100
Total Adjusted Replacement Cost New $248,534
Physical Depreciation (% Bad) 0%
Depreciated Value $141,664
Economic Depreciation (% Bad) 0%
Functional Depreciation (% Bad) 0%
Total Depreciated Value $141,664
Market Area Factor 1.00
Building Value $141,664
Misc Improvements Value $218
Total Improvement Value $141,882

Assessed Land Value $110,250
   
Assessed Total Value $252,132



Addition Summary 
StoryTypeCodeArea
1.00 Concrete Slab 16B 450
1.00 Covered Porch 18 60
1.00 Carport 30 336
1.00 Storage Utility 32 50
 
Other Improvements 
UnitsDescriptionItemCodeYear% BadValue
8x12 DIMENSIONS Shed (Open Pole) 1963 75 218
 


Building Sketch
Photograph
Building Sketch Building Photo
(Click sketch for bigger image)




Copyright © 2022 Durham County, North Carolina.