Building Summary

Data last updated on: 4/2/2026     Ownership current as of: 3/30/2026     Tax Year: 2026
REID 132111

PIN # 0841-51-6141

Location Address Property Description
702 LINDLEY DR PROP-HURSEY STREET/LYNN R D DEV/BLK:E/LT#08 LT#07P PL:00031A-000007
   
Property Owner Owner's Mailing Address
SFR, XII NM RALEIGH OWNER 1 L P
PO BOX 4900`
SCOTTSDALE AZ 85261
Parcel
Buildings
Misc Improvements
Land
Deeds
Notes
Sales
Photos
Map
Building Location Address
702 LINDLEY DR
Building Description
RESMS-RES-MS-OR-EQ
Card   of  1
Bldg Type RESIDENTIAL
Units 1
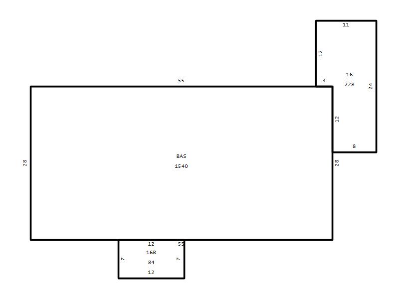
Living Area (SQFT) 1540
Number of Stories 1.00
Style RAN-RANCH
Foundation 04-P-FOOTING/CRWL-SP
Exterior 02-BRICK
Const Type
Heating 05-PACKAGE-HEAT/COOL
Air Cond
Plumbing Baths (Full):   1
Baths (Half):   1
Extra Fixtures:   0
Total Plumbing Fixtures:   5 
Bedrooms 3
Main Body (SQFT) 1540
Year Built 1959
Additions 2
Effective Year 1959
Remodeled 0
Interior Adj.
Other Features
Building Total & Improvement Details

Grade C 100%
Percentage Complete 100
Total Adjusted Replacement Cost New $276,049
Physical Depreciation (% Bad) 0%
Depreciated Value $151,827
Economic Depreciation (% Bad) 0%
Functional Depreciation (% Bad) 0%
Total Depreciated Value $151,827
Market Area Factor 1.00
Building Value $151,827
Misc Improvements Value $1,559
Total Improvement Value $153,386

Assessed Land Value $113,250
   
Assessed Total Value $266,636



Addition Summary 
StoryTypeCodeArea
1.00 Frame Deck 16 228
1.00 Concrete Slab 16B 84
 
Other Improvements 
UnitsDescriptionItemCodeYear% BadValue
10x12 DIMENSIONS Shop 1959 75 1559
 


Building Sketch
Photograph
Building Sketch Building Photo
(Click sketch for bigger image)




Copyright © 2022 Durham County, North Carolina.