Building Summary

Data last updated on: 4/2/2026     Ownership current as of: 3/30/2026     Tax Year: 2026
REID 132181

PIN # 0841-61-0594

Location Address Property Description
601 LINDLEY DR PROP-HURSEY STREET/LYNN R D DEV/LT#02 PL:000111-000214
   
Property Owner Owner's Mailing Address
CASTRO, THOMAS MEDINA
601 LINDLEY DR
DURHAM NC 27703
Parcel
Buildings
Misc Improvements
Land
Deeds
Notes
Sales
Photos
Map
Building Location Address
601 LINDLEY DR
Building Description
RESFR-RES-FRM-OR-EQ
Card   of  1
Bldg Type RESIDENTIAL
Units 1
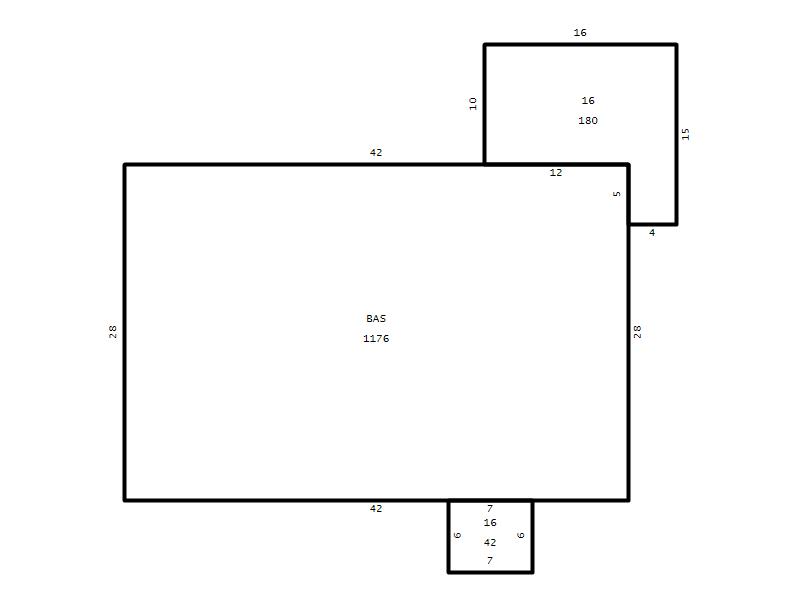
Living Area (SQFT) 1176
Number of Stories 1.00
Style RAN-RANCH
Foundation 04-P-FOOTING/CRWL-SP
Exterior 09-HARD-B/CEMENTBRD
Const Type
Heating 05-PACKAGE-HEAT/COOL
Air Cond
Plumbing Baths (Full):   2
Baths (Half):   0
Extra Fixtures:   0
Total Plumbing Fixtures:   6 
Bedrooms 2
Main Body (SQFT) 1176
Year Built 1987
Additions 2
Effective Year 1987
Remodeled 0
Interior Adj.
Other Features
Building Total & Improvement Details

Grade C- 95%
Percentage Complete 100
Total Adjusted Replacement Cost New $213,305
Physical Depreciation (% Bad) 0%
Depreciated Value $151,447
Economic Depreciation (% Bad) 0%
Functional Depreciation (% Bad) 0%
Total Depreciated Value $151,447
Market Area Factor 1.00
Building Value $151,447
Misc Improvements Value $148
Total Improvement Value $151,595

Assessed Land Value $102,000
   
Assessed Total Value $253,595



Addition Summary 
StoryTypeCodeArea
1.00 Frame Deck 16 180
1.00 Frame Deck 16 42
 
Other Improvements 
UnitsDescriptionItemCodeYear% BadValue
8x8 DIMENSIONS Shed (Open Pole) 1987 75 148
 


Building Sketch
Photograph
Building Sketch Building Photo
(Click sketch for bigger image)




Copyright © 2022 Durham County, North Carolina.