Building Summary

Data last updated on: 4/2/2026     Ownership current as of: 3/30/2026     Tax Year: 2026
REID 132278

PIN # 0841-64-5404

Location Address Property Description
3012 CATHY DR SCOTTISH HLS CLUSTER/PH:0 1/LT#104 PL:000109-000060
   
Property Owner Owner's Mailing Address
RUSSELL, KATHY NORELL
3012 CATHY DR
DURHAM NC 27703
Parcel
Buildings
Misc Improvements
Land
Deeds
Notes
Sales
Photos
Map
Building Location Address
3012 CATHY DR
Building Description
RESFR-RES-FRM-OR-EQ
Card   of  1
Bldg Type RESIDENTIAL
Units 1
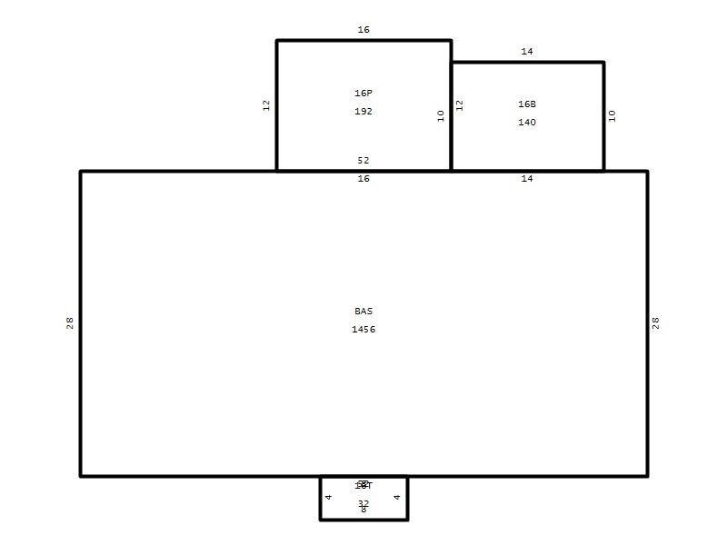
Living Area (SQFT) 1456
Number of Stories 1.00
Style RAN-RANCH
Foundation 03-CONTINOUS-SLAB
Exterior 08-VINYL/ALUMINUM
Const Type
Heating 05-PACKAGE-HEAT/COOL
Air Cond
Plumbing Baths (Full):   2
Baths (Half):   0
Extra Fixtures:   0
Total Plumbing Fixtures:   6 
Bedrooms 3
Main Body (SQFT) 1456
Year Built 1987
Additions 3
Effective Year 1987
Remodeled 0
Interior Adj.
Other Features
Building Total & Improvement Details

Grade C+ 110%
Percentage Complete 100
Total Adjusted Replacement Cost New $270,801
Physical Depreciation (% Bad) 0%
Depreciated Value $192,269
Economic Depreciation (% Bad) 0%
Functional Depreciation (% Bad) 0%
Total Depreciated Value $192,269
Market Area Factor 1.00
Building Value $192,269
Misc Improvements Value $4,366
Total Improvement Value $196,635

Assessed Land Value $71,390
   
Assessed Total Value $268,025



Addition Summary 
StoryTypeCodeArea
1.00 Concrete Slab 16B 140
1.00 Patio 16P 192
1.00 Terrace/Raised Patio 16T 32
 
Other Improvements 
UnitsDescriptionItemCodeYear% BadValue
10x12 DIMENSIONS Shop 2007 30 4366
 


Building Sketch
Photograph
Building Sketch Building Photo
(Click sketch for bigger image)




Copyright © 2022 Durham County, North Carolina.