Building Summary

Data last updated on: 4/2/2026     Ownership current as of: 3/30/2026     Tax Year: 2026
REID 132292

PIN # 0841-64-5874

Location Address Property Description
4 THENSIA CT SCOTTISH HLS CLUSTER/PH:0 1/LT#111 PL:000113-000150
   
Property Owner Owner's Mailing Address
REYES, OSCAR N BUSTILLO;AGUILAR, NORMA I AGUILAR
4 THENSIA CT
DURHAM NC 27703
Parcel
Buildings
Misc Improvements
Land
Deeds
Notes
Sales
Photos
Map
Building Location Address
4 THENSIA CT
Building Description
RESFR-RES-FRM-OR-EQ
Card   of  1
Bldg Type RESIDENTIAL
Units 1
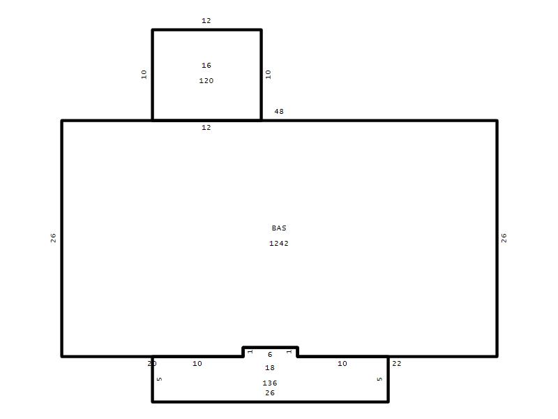
Living Area (SQFT) 1242
Number of Stories 1.00
Style RAN-RANCH
Foundation 04-P-FOOTING/CRWL-SP
Exterior 09-HARD-B/CEMENTBRD
Const Type
Heating 05-PACKAGE-HEAT/COOL
Air Cond
Plumbing Baths (Full):   2
Baths (Half):   0
Extra Fixtures:   0
Total Plumbing Fixtures:   6 
Bedrooms 3
Main Body (SQFT) 1242
Year Built 1988
Additions 2
Effective Year 1988
Remodeled 0
Interior Adj.
Other Features
Building Total & Improvement Details

Grade C+ 110%
Percentage Complete 100
Total Adjusted Replacement Cost New $259,513
Physical Depreciation (% Bad) 0%
Depreciated Value $246,537
Economic Depreciation (% Bad) 0%
Functional Depreciation (% Bad) 0%
Total Depreciated Value $246,537
Market Area Factor 1.00
Building Value $246,537
Misc Improvements Value
Total Improvement Value $246,537

Assessed Land Value $72,570
   
Assessed Total Value $319,107



Addition Summary 
StoryTypeCodeArea
1.00 Frame Deck 16 120
1.00 Covered Porch 18 136
 
Other Improvements 
 


Building Sketch
Photograph
Building Sketch Building Photo
(Click sketch for bigger image)




Copyright © 2022 Durham County, North Carolina.