Building Summary

Data last updated on: 3/13/2026     Ownership current as of: 3/9/2026     Tax Year: 2026
REID 132682

PIN # 0830-05-7700

Location Address Property Description
815 CORONA ST PINE ACRES REV/LT#44D PL:000032-000166
   
Property Owner Owner's Mailing Address
HEFETZ, YOSEF
5540 CENTERVIEW DR STE204 PMB 34764
RALEIGH NC 27606
Parcel
Buildings
Misc Improvements
Land
Deeds
Notes
Sales
Photos
Map
Building Location Address
815 CORONA ST
Building Description
RESMS-RES-MS-OR-EQ
Card   of  1
Bldg Type RESIDENTIAL
Units 1
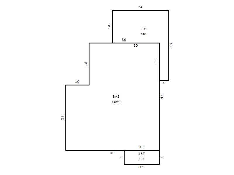
Living Area (SQFT) 1660
Number of Stories 1.00
Style RAN-RANCH
Foundation 04-P-FOOTING/CRWL-SP
Exterior 02-BRICK
Const Type
Heating 05-PACKAGE-HEAT/COOL
Air Cond
Plumbing Baths (Full):   1
Baths (Half):   0
Extra Fixtures:   0
Total Plumbing Fixtures:   3 
Bedrooms 3
Main Body (SQFT) 1660
Year Built 1972
Additions 2
Effective Year 1972
Remodeled 0
Interior Adj.
Other Features
Building Total & Improvement Details

Grade C 100%
Percentage Complete 100
Total Adjusted Replacement Cost New $295,016
Physical Depreciation (% Bad) 0%
Depreciated Value $185,860
Economic Depreciation (% Bad) 0%
Functional Depreciation (% Bad) 0%
Total Depreciated Value $185,860
Market Area Factor 1.00
Building Value $185,860
Misc Improvements Value $295
Total Improvement Value $186,155

Assessed Land Value $101,500
   
Assessed Total Value $287,655



Addition Summary 
StoryTypeCodeArea
1.00 Frame Deck 16 400
1.00 Terrace/Raised Patio 16T 90
 
Other Improvements 
UnitsDescriptionItemCodeYear% BadValue
13x10 DIMENSIONS Shed (Open Pole) 1996 75 295
 


Building Sketch
Photograph
Building Sketch Building Photo
(Click sketch for bigger image)




Copyright © 2022 Durham County, North Carolina.