Building Summary

Data last updated on: 3/13/2026     Ownership current as of: 3/9/2026     Tax Year: 2026
REID 132744

PIN # 0830-15-3366

Location Address Property Description
2019 NC 55 HWY PROP-MCDOUGALD DOROTHY/PR OP-ROBERTS BOBBY/LT#01 P PL:000000-000000
   
Property Owner Owner's Mailing Address
SCHORR, TOBER JACKSON
1720 S MARSHALL RD TRLR 45
BOULDER CO 80305
Parcel
Buildings
Misc Improvements
Land
Deeds
Notes
Sales
Photos
Map
Building Location Address
2019 NC 55 HWY
Building Description
RESFR-RES-FRM-OR-EQ
Card   of  1
Bldg Type RESIDENTIAL
Units 1
Living Area (SQFT) 960
Number of Stories 1.00
Style RAN-RANCH
Foundation 06-BASEMENT
Exterior 08-VINYL/ALUMINUM
Const Type
Heating 05-PACKAGE-HEAT/COOL
Air Cond
Plumbing Baths (Full):   1
Baths (Half):   0
Extra Fixtures:   0
Total Plumbing Fixtures:   3 
Bedrooms 3
Main Body (SQFT) 960
Year Built 1959
Additions 4
Effective Year 1959
Remodeled 0
Interior Adj.
Other Features
Building Total & Improvement Details

Grade C+20 120%
Percentage Complete 100
Total Adjusted Replacement Cost New $285,043
Physical Depreciation (% Bad) 0%
Depreciated Value $185,278
Economic Depreciation (% Bad) 0%
Functional Depreciation (% Bad) 0%
Total Depreciated Value $185,278
Market Area Factor 1.00
Building Value $185,278
Misc Improvements Value
Total Improvement Value $185,278

Assessed Land Value $115,500
   
Assessed Total Value $300,778



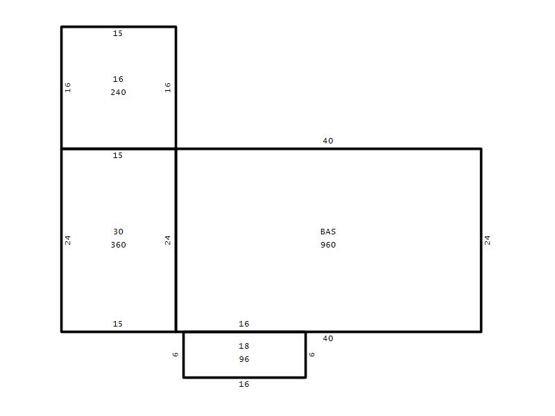
Addition Summary 
StoryTypeCodeArea
1.00 Frame Deck 16 240
1.00 Covered Porch 18 96
1.00 Carport 30 360
1.00 Unfinished Basement 10 960
 
Other Improvements 
 


Building Sketch
Photograph
Building Sketch Building Photo
(Click sketch for bigger image)




Copyright © 2022 Durham County, North Carolina.