Building Summary

Data last updated on: 3/13/2026     Ownership current as of: 3/9/2026     Tax Year: 2026
REID 132823

PIN # 0830-05-9669

Location Address Property Description
2002 NC 55 HWY PINE ACRES/LT#47 A B C GR PT PL:000009-000012
   
Property Owner Owner's Mailing Address
HERNANDEZ, KATHIA GUERRERO I
2002 NC HWY 55
DURHAM NC 27707
Parcel
Buildings
Misc Improvements
Land
Deeds
Notes
Sales
Photos
Map
Building Location Address
2002 NC 55 HWY
Building Description
RESMS-RES-MS-OR-EQ
Card   of  1
Bldg Type RESIDENTIAL
Units 1
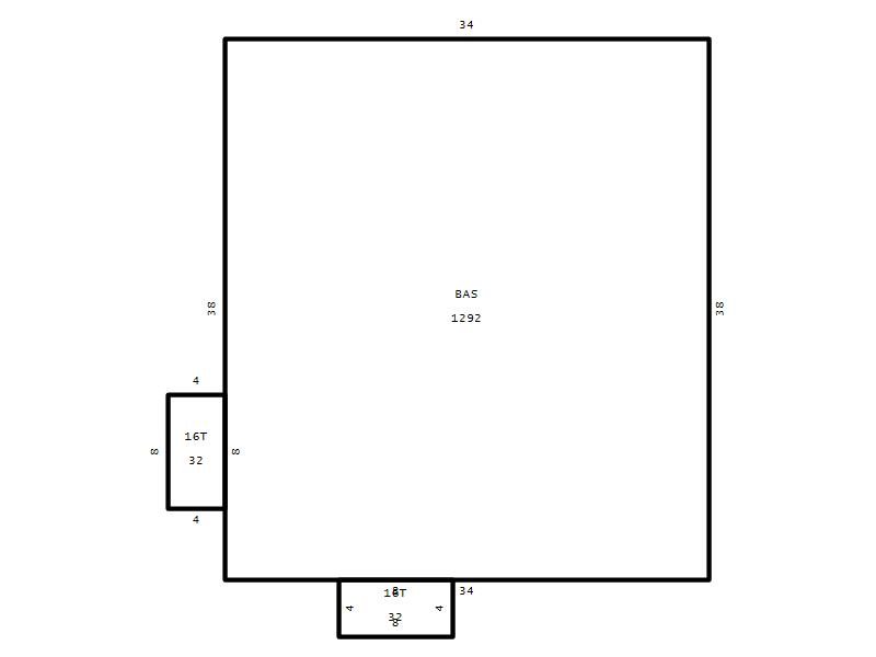
Living Area (SQFT) 1292
Number of Stories 1.00
Style RAN-RANCH
Foundation 04-P-FOOTING/CRWL-SP
Exterior 02-BRICK
Const Type
Heating 06-HEAT-PUMP
Air Cond
Plumbing Baths (Full):   1
Baths (Half):   1
Extra Fixtures:   0
Total Plumbing Fixtures:   5 
Bedrooms 3
Main Body (SQFT) 1292
Year Built 1972
Additions 2
Effective Year 1972
Remodeled 0
Interior Adj.
Other Features
Building Total & Improvement Details

Grade C- 95%
Percentage Complete 100
Total Adjusted Replacement Cost New $228,083
Physical Depreciation (% Bad) 0%
Depreciated Value $166,501
Economic Depreciation (% Bad) 0%
Functional Depreciation (% Bad) 0%
Total Depreciated Value $166,501
Market Area Factor 1.00
Building Value $166,501
Misc Improvements Value
Total Improvement Value $166,501

Assessed Land Value $105,000
   
Assessed Total Value $271,501



Addition Summary 
StoryTypeCodeArea
1.00 Terrace/Raised Patio 16T 32
1.00 Terrace/Raised Patio 16T 32
 
Other Improvements 
 


Building Sketch
Photograph
Building Sketch Building Photo
(Click sketch for bigger image)




Copyright © 2022 Durham County, North Carolina.