Building Summary

Data last updated on: 4/2/2026     Ownership current as of: 3/30/2026     Tax Year: 2026
REID 103424

PIN # 0811-92-4751

Location Address Property Description
2508 VESSON AVE PINECREST/BLK:09/LT#18 PL:000006-000062
   
Property Owner Owner's Mailing Address
MASON, SARA
2508 VESSON AVE
DURHAM NC 27707
Parcel
Buildings
Misc Improvements
Land
Deeds
Notes
Sales
Photos
Map
Building Location Address
2508 VESSON AVE
Building Description
RESFR-RES-FRM-OR-EQ
Card   of  1
Bldg Type RESIDENTIAL
Units 1
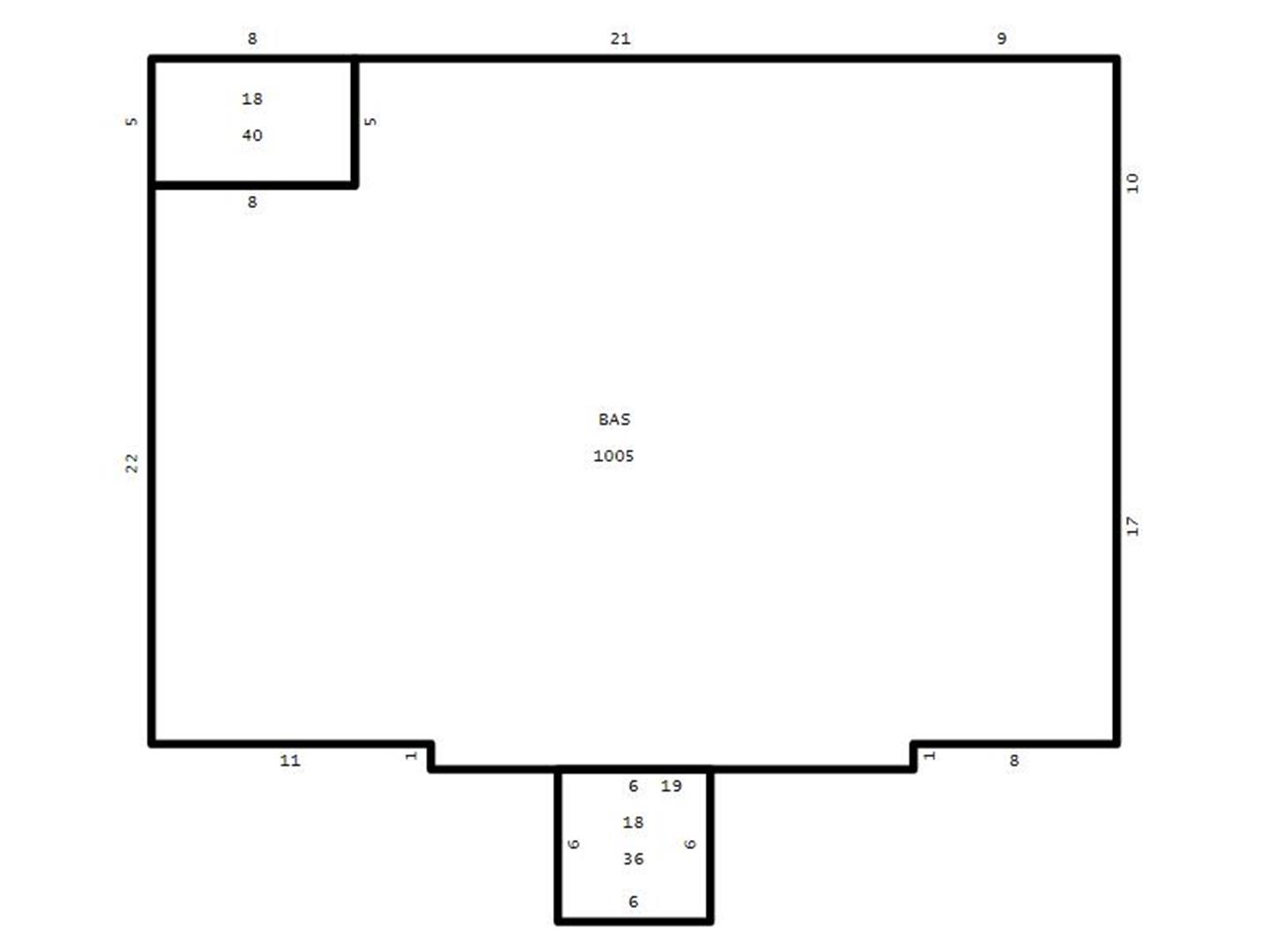
Living Area (SQFT) 1005
Number of Stories 1.00
Style RAN-RANCH
Foundation 06-BASEMENT
Exterior 08-VINYL/ALUMINUM
Const Type
Heating 05-PACKAGE-HEAT/COOL
Air Cond
Plumbing Baths (Full):   2
Baths (Half):   0
Extra Fixtures:   0
Total Plumbing Fixtures:   6 
Bedrooms 2
Main Body (SQFT) 1005
Year Built 1938
Additions 3
Effective Year 1938
Remodeled 0
Interior Adj.
Other Features
Building Total & Improvement Details

Grade C-10 90%
Percentage Complete 100
Total Adjusted Replacement Cost New $190,879
Physical Depreciation (% Bad) 0%
Depreciated Value $143,159
Economic Depreciation (% Bad) 0%
Functional Depreciation (% Bad) 0%
Total Depreciated Value $143,159
Market Area Factor 1.00
Building Value $143,159
Misc Improvements Value $133
Total Improvement Value $143,292

Assessed Land Value $302,670
   
Assessed Total Value $445,962



Addition Summary 
StoryTypeCodeArea
1.00 Covered Porch 18 40
1.00 Covered Porch 18 36
1.00 Unfinished Basement 10 400
 
Other Improvements 
UnitsDescriptionItemCodeYear% BadValue
12x14 DIMENSIONS Lean To 1938 75 133
 


Building Sketch
Photograph
Building Sketch Building Photo
(Click sketch for bigger image)




Copyright © 2022 Durham County, North Carolina.