Building Summary

Data last updated on: 3/31/2026     Ownership current as of: 3/26/2026     Tax Year: 2026
REID 103426

PIN # 0811-92-5977

Location Address Property Description
1600 ANDERSON ST PROP-E & W PROPERTIES/TR#02 PL:000107-000109
   
Property Owner Owner's Mailing Address
ANDERSON LAKEWOOD LLC
1208 W CHAPEL HILL ST
DURHAM NC 27701
Parcel
Buildings
Misc Improvements
Land
Deeds
Notes
Sales
Photos
Map
Building Location Address
1600 ANDERSON ST
Card   of  5        Section   of  4
Building Details

Building Name APARTMENT GARDEN WOOD FR
Primary Occupancy Type COMMERCIAL
Primary Occupancy 01W-APTT-GARDEN-W-FR
Primary Class H1W
Primary Quality C
Year Built 1968
Effective Year 1968
Physical Depreciation (Rating) CAW-CDU PERCENTAGE
Physical Depreciation (% Bad) 55.00%
Economic Depreciation (% Bad) 0%
Functional Depreciation (% Bad) 0%
Gross Leasable Area (SQFT) 9560
Remodeled Year
Total Stories

Section Details

Occupancy Type COMMERCIAL


Class H1W
Depreciation 55%
Depreciation CAW-CDU PERCENTAGE
Heat 15-HEAT-&-AC-COM
Occupancy 01W-APTT-GARDEN-W-FR
Quality C
Exterior Walls N/A-EXT-WALL
Building Total & Improvement Details

Total Adjusted Replacement Cost New $1,719,611
Physical Depreciation (% Bad) 55.00%
Depreciated Value $773,825
Economic Depreciation (% Bad) 0%
Functional Depreciation (% Bad) 0%
Total Depreciated Value $773,825
Market Area Factor 1.00
Building Value $773,825
Misc Improvements Value $28,263
Total Improvement Value $802,088

Assessed Land Value $3,360,000
   
Assessed Total Value


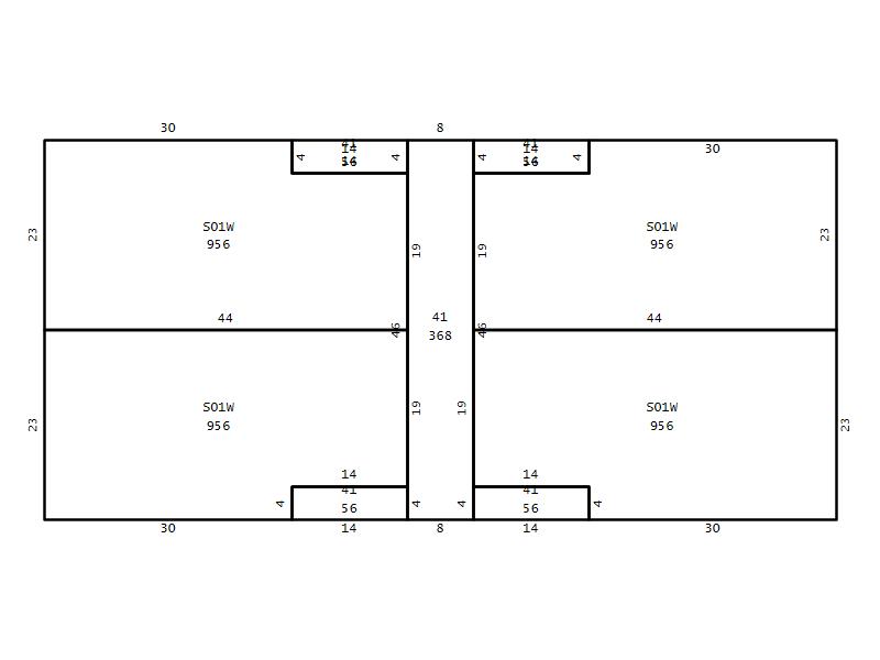
Addition Summary 
StoryTypeCodeArea
3.00 Canopy Commercial 41 56
3.00 Canopy Commercial 41 56
2.00 Canopy Commercial 41 56
2.00 Canopy Commercial 41 56
1.00 Canopy Commercial 41 368
 
Other Improvements 
UnitsDescriptionItemCodeYear% BadValue
26600 SIZE Asphalt Paving 1968 75 28263
 


Building Sketch
Photograph
Building Sketch Building Photo
(Click sketch for bigger image)




Copyright © 2022 Durham County, North Carolina.