Building Summary

Data last updated on: 4/2/2026     Ownership current as of: 3/30/2026     Tax Year: 2026
REID 134370

PIN # 0820-61-2349

Location Address Property Description
6 HAWAII CT HOLIDAY PARK/DBA-JONES FA MILY HOMES/LT#17 GROUP H PL:000081-000073
   
Property Owner Owner's Mailing Address
MUKKAVALLI, ARCHANA;SINGH, SAPNA;JHA, SIDDHARTH
205 UNION RIDGE DR
MORRISVILLE NC 27560
Parcel
Buildings
Misc Improvements
Land
Deeds
Notes
Sales
Photos
Map
Building Location Address
6 HAWAII CT
Building Description
RESMS-RES-MS-OR-EQ
Card   of  1
Bldg Type RESIDENTIAL
Units 1
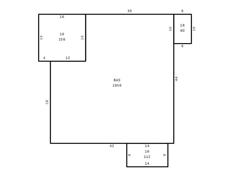
Living Area (SQFT) 1656
Number of Stories 1.00
Style RAN-RANCH
Foundation 04-P-FOOTING/CRWL-SP
Exterior 02-BRICK
Const Type
Heating 05-PACKAGE-HEAT/COOL
Air Cond
Plumbing Baths (Full):   1
Baths (Half):   1
Extra Fixtures:   0
Total Plumbing Fixtures:   5 
Bedrooms 3
Main Body (SQFT) 1656
Year Built 1973
Additions 3
Effective Year 1973
Remodeled 0
Interior Adj.
Other Features
Building Total & Improvement Details

Grade C- 95%
Percentage Complete 100
Total Adjusted Replacement Cost New $289,476
Physical Depreciation (% Bad) 0%
Depreciated Value $141,843
Economic Depreciation (% Bad) 0%
Functional Depreciation (% Bad) 0%
Total Depreciated Value $141,843
Market Area Factor 1.00
Building Value $141,843
Misc Improvements Value
Total Improvement Value $141,843

Assessed Land Value $167,750
   
Assessed Total Value $309,593



Addition Summary 
StoryTypeCodeArea
1.00 Frame Deck 16 112
1.00 Covered Porch 18 60
1.00 Frame Deck 16 256
 
Other Improvements 
 


Building Sketch
Photograph
Building Sketch Building Photo
(Click sketch for bigger image)




Copyright © 2022 Durham County, North Carolina.