Building Summary

Data last updated on: 4/2/2026     Ownership current as of: 3/30/2026     Tax Year: 2026
REID 134428

PIN # 0820-41-7492

Location Address Property Description
3110 TRINNESS DR CEDAR VALLEY/PH:02/LT#48 PL:000134-000080
   
Property Owner Owner's Mailing Address
CORARRUBIAS, SELENA IBARRA;MONTES, KENLY
3110 TRINNESS DR
DURHAM NC 27707
Parcel
Buildings
Misc Improvements
Land
Deeds
Notes
Sales
Photos
Map
Building Location Address
3110 TRINNESS DR
Building Description
RESFR-RES-FRM-OR-EQ
Card   of  1
Bldg Type RESIDENTIAL
Units 1
Living Area (SQFT) 1938
Number of Stories 2.00
Style COL-COLONIAL
Foundation 04-P-FOOTING/CRWL-SP
Exterior 09-HARD-B/CEMENTBRD
Const Type
Heating 05-PACKAGE-HEAT/COOL
Air Cond
Plumbing Baths (Full):   2
Baths (Half):   1
Extra Fixtures:   0
Total Plumbing Fixtures:   8 
Bedrooms 3
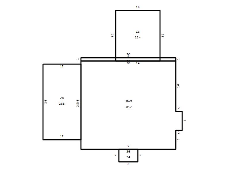
Main Body (SQFT) 852
Year Built 1996
Additions 6
Effective Year 1996
Remodeled 0
Interior Adj.
Other Features
Building Total & Improvement Details

Grade C 100%
Percentage Complete 100
Total Adjusted Replacement Cost New $344,577
Physical Depreciation (% Bad) 0%
Depreciated Value $206,746
Economic Depreciation (% Bad) 0%
Functional Depreciation (% Bad) 0%
Total Depreciated Value $206,746
Market Area Factor 1.00
Building Value $206,746
Misc Improvements Value
Total Improvement Value $206,746

Assessed Land Value $171,875
   
Assessed Total Value $378,621



Addition Summary 
StoryTypeCodeArea
1.00 Overhang 01 30
1.00 Frame Deck 16 224
1.00 Covered Porch 18 24
1.00 Garage 28 288
1.00 Res Frame 2Nd Flr FR02 840
1.00 Res Frm 2Nd Flr Over Garg FR02 216
 
Other Improvements 
 


Building Sketch
Photograph
Building Sketch Building Photo
(Click sketch for bigger image)




Copyright © 2022 Durham County, North Carolina.