Building Summary

Data last updated on: 4/2/2026     Ownership current as of: 3/30/2026     Tax Year: 2026
REID 134546

PIN # 0820-42-8095

Location Address Property Description
3003 KANEWOOD DR ELLISWOOD/SEC:04/LT#01 PL:000131-000063
   
Property Owner Owner's Mailing Address
BAF ASSETS 4 LLC
3903 S CONGRESS AVE STE 40298
AUSTIN TX 78704
Parcel
Buildings
Misc Improvements
Land
Deeds
Notes
Sales
Photos
Map
Building Location Address
3003 KANEWOOD DR
Building Description
RESFR-RES-FRM-OR-EQ
Card   of  1
Bldg Type RESIDENTIAL
Units 1
Living Area (SQFT) 1326
Number of Stories 2.00
Style CAP-CAPE-COD
Foundation 03-CONTINOUS-SLAB
Exterior 08-VINYL/ALUMINUM
Const Type
Heating 05-PACKAGE-HEAT/COOL
Air Cond
Plumbing Baths (Full):   2
Baths (Half):   0
Extra Fixtures:   0
Total Plumbing Fixtures:   6 
Bedrooms 3
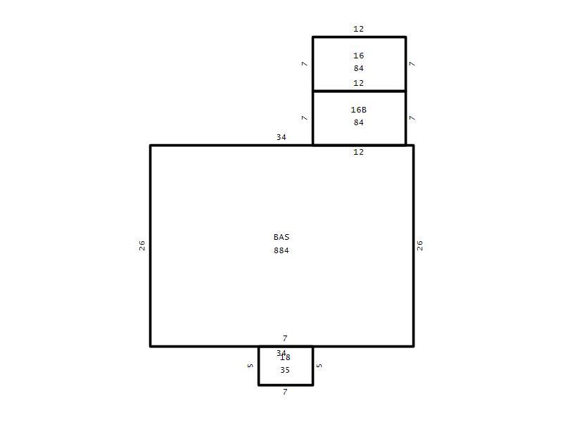
Main Body (SQFT) 884
Year Built 1994
Additions 4
Effective Year 1994
Remodeled 0
Interior Adj.
Other Features
Building Total & Improvement Details

Grade C- 95%
Percentage Complete 100
Total Adjusted Replacement Cost New $221,218
Physical Depreciation (% Bad) 0%
Depreciated Value $163,701
Economic Depreciation (% Bad) 0%
Functional Depreciation (% Bad) 0%
Total Depreciated Value $163,701
Market Area Factor 1.00
Building Value $163,701
Misc Improvements Value $4,940
Total Improvement Value $168,641

Assessed Land Value $182,875
   
Assessed Total Value $351,516



Addition Summary 
StoryTypeCodeArea
1.00 Frame Deck 16 84
1.00 Concrete Slab 16B 84
1.00 Covered Porch 18 35
1.00 Res Frame 2Nd Flr FR02 442
 
Other Improvements 
UnitsDescriptionItemCodeYear% BadValue
176 SIZE Shop 2000 45 4940
 


Building Sketch
Photograph
Building Sketch Building Photo
(Click sketch for bigger image)




Copyright © 2022 Durham County, North Carolina.