Building Summary

Data last updated on: 4/3/2026     Ownership current as of: 3/30/2026     Tax Year: 2026
REID 135733

PIN # 0718-18-6519

Location Address Property Description
7103 NC 751 HWY PROP-COASTAL FEDERAL CRED IT UNION/LT#01 PL:000199-000296
   
Property Owner Owner's Mailing Address
COASTAL FEDERAL CREDIT UNION
1000 ST ALBANS DR
RALEIGH NC 27609
Parcel
Buildings
Misc Improvements
Land
Deeds
Notes
Sales
Photos
Map
Building Location Address
7103 NC 751 HWY
Card   of  1        Section   of  1
Building Details

Building Name BANK MASONRY
Primary Occupancy Type COMMERCIAL
Primary Occupancy 10M-BANK-MASONRY
Primary Class M
Primary Quality B
Year Built 2019
Effective Year 2019
Physical Depreciation (Rating) CAR-CDU PERCENTAGE
Physical Depreciation (% Bad) 10.00%
Economic Depreciation (% Bad) 0%
Functional Depreciation (% Bad) 0%
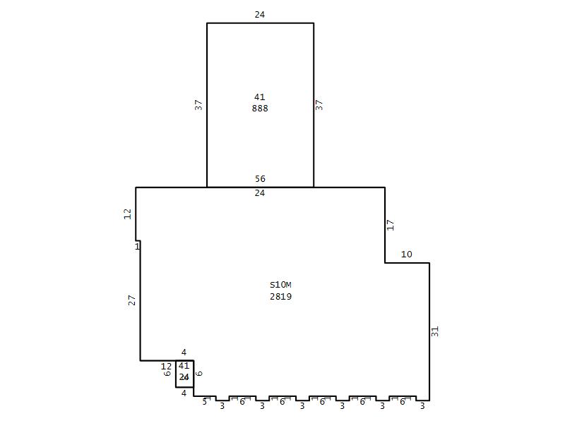
Gross Leasable Area (SQFT) 2819
Remodeled Year
Total Stories

Section Details

Occupancy Type COMMERCIAL


Class M
Depreciation 10%
Depreciation CAR-CDU PERCENTAGE
Heat 15-HEAT-&-AC-COM
Occupancy 10M-BANK-MASONRY
Quality B
Sprinkler 1-WET-SPRINKLER
Exterior Walls N/A-EXT-WALL
Building Total & Improvement Details

Total Adjusted Replacement Cost New $1,107,552
Physical Depreciation (% Bad) 10.00%
Depreciated Value $996,797
Economic Depreciation (% Bad) 0%
Functional Depreciation (% Bad) 0%
Total Depreciated Value $996,797
Market Area Factor 1.00
Building Value $996,797
Misc Improvements Value $52,368
Total Improvement Value $1,049,165

Assessed Land Value $2,156,000
   
Assessed Total Value $3,205,165


Addition Summary 
StoryTypeCodeArea
1.00 Canopy Commercial 41 888
1.00 Canopy Commercial 41 24
 
Other Improvements 
UnitsDescriptionItemCodeYear% BadValue
6 UNITS Parking Lot Light 2019 24 1368
20000 SIZE Asphalt Paving 2019 40 51000
 


Building Sketch
Photograph
Building Sketch Photo is unavailable for this parcel.
(Click sketch for bigger image)




Copyright © 2022 Durham County, North Carolina.