Building Summary

Data last updated on: 3/31/2026     Ownership current as of: 3/26/2026     Tax Year: 2026
REID 137175

PIN # 0810-09-8129

Location Address Property Description
3017 PICKETT RD PROP-STRUCTURE HOUSE DBA/STRUCTURE HOUSE APTS PL:000179-000175
   
Property Owner Owner's Mailing Address
3017 PICKETT OWNER LLC
7225 WINDSOR BLVD STE 200
BALTIMORE MD 21244
Parcel
Buildings
Misc Improvements
Land
Income
Deeds
Notes
Sales
Photos
Map
Building Location Address
3017 PICKETT RD
Card   of  11        Section   of  1
Building Details

Building Name APARTMENT GARDEN WOOD FR
Primary Occupancy Type COMMERCIAL
Primary Occupancy 01W-APTT-GARDEN-W-FR
Primary Class H1W
Primary Quality C
Year Built 1986
Effective Year 1986
Physical Depreciation (Rating) CGW-CDU PERCENTAGE
Physical Depreciation (% Bad) 39.00%
Economic Depreciation (% Bad) 0%
Functional Depreciation (% Bad) 0%
Gross Leasable Area (SQFT) 6416
Remodeled Year
Total Stories

Section Details

Occupancy Type COMMERCIAL


Exterior Walls N/A-EXT-WALL
Quality C
Occupancy 01W-APTT-GARDEN-W-FR
Heat 15-HEAT-&-AC-COM
Depreciation 39%
Depreciation CGW-CDU PERCENTAGE
Class H1W
Building Total & Improvement Details

Total Adjusted Replacement Cost New $1,172,564
Physical Depreciation (% Bad) 39.00%
Depreciated Value $715,264
Economic Depreciation (% Bad) 0%
Functional Depreciation (% Bad) 0%
Total Depreciated Value $715,264
Market Area Factor 1.00
Building Value $715,264
Misc Improvements Value $313,573
Total Improvement Value $1,028,837

Assessed Land Value $3,800,000
   
Assessed Total Value $10,925,414


Addition Summary 
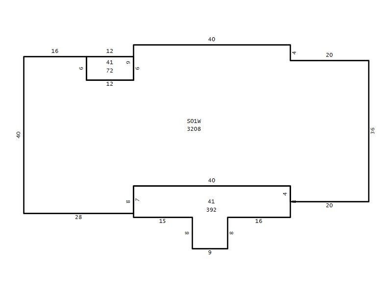
StoryTypeCodeArea
2.00 Canopy Commercial 41 392
1.00 Canopy Commercial 41 72
 
Other Improvements 
UnitsDescriptionItemCodeYear% BadValue
1250 SIZE Swimming Pool/Concrete 1986 0 96368
1584 SIZE Concrete Paving 1986 75 2376
9900 SIZE Fence, Wrought Iron 6' 1986 75 74250
1536 SIZE Fence, Chain 6' 1986 75 7296
8 UNITS Parking Lot Light 1986 55 1080
570 SIZE Fence, Wrought Iron 6' 1986 75 4275
2278 SIZE Concrete Paving 1986 75 3417
1025 SIZE Swimming Pool/Concrete 1986 50 39511
80000 SIZE Asphalt Paving 1986 75 85000
 


Building Sketch
Photograph
Building Sketch Building Photo
(Click sketch for bigger image)




Copyright © 2022 Durham County, North Carolina.