Building Summary

Data last updated on: 10/17/2025     Ownership current as of: 10/1/2025     Tax Year: 2025
REID 104127

PIN # 0812-93-9588

Location Address Property Description
613 HICKS ST PROP-STRAWBRIDGE J E/LT#0 3 PL:000016-000197
   
Property Owner Owner's Mailing Address
SIEMER, MARGUERITE;OHARA, CORY
110 TOLLGATE WAY
FALLS CHURCH VA 22046
Parcel
Buildings
Misc Improvements
Land
Deeds
Notes
Sales
Photos
Map
Building Location Address
613 HICKS ST
Building Description
RESFR-RES-FRM-OR-EQ
Card   of  1
Bldg Type RESIDENTIAL
Units 1
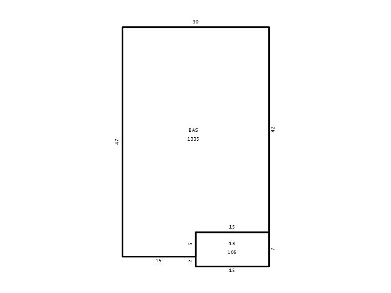
Living Area (SQFT) 1335
Number of Stories 1.00
Style RAN-RANCH
Foundation 04-P-FOOTING/CRWL-SP
Exterior 01-WOOD-PANEL
Const Type
Heating 01-FLR/WALL-FURNACE
Air Cond
Plumbing Baths (Full):   1
Baths (Half):   0
Extra Fixtures:   0
Total Plumbing Fixtures:   3 
Bedrooms 2
Main Body (SQFT) 1335
Year Built 1935
Additions 1
Effective Year 1935
Remodeled 0
Interior Adj.
Other Features
Building Total & Improvement Details

Grade D+ 85%
Percentage Complete 100
Total Adjusted Replacement Cost New $199,054
Physical Depreciation (% Bad) 0%
Depreciated Value $109,480
Economic Depreciation (% Bad) 0%
Functional Depreciation (% Bad) 0%
Total Depreciated Value $109,480
Market Area Factor 1.00
Building Value $109,480
Misc Improvements Value
Total Improvement Value $109,480

Assessed Land Value $81,544
   
Assessed Total Value $191,024



Addition Summary 
StoryTypeCodeArea
1.00 Covered Porch 18 105
 
Other Improvements 
 


Building Sketch
Photograph
Building Sketch Building Photo
(Click sketch for bigger image)




Copyright © 2022 Durham County, North Carolina.