Building Summary

Data last updated on: 1/26/2026     Ownership current as of: 1/14/2026     Tax Year: 2026
REID 146406

PIN # 0820-30-5047

Location Address Property Description
1012 COOK RD PROP-GOMES MATTHEW/LT#22 PL:000202-000336
   
Property Owner Owner's Mailing Address
LUCKYNET LLC
6717 JOHNSDALE RD
RALEIGH NC 27615
Parcel
Buildings
Misc Improvements
Land
Deeds
Notes
Sales
Photos
Map
Building Location Address
1012 COOK RD
Building Description
RESFR-RES-FRM-OR-EQ
Card   of  1
Bldg Type RESIDENTIAL
Units 1
Living Area (SQFT) 2902
Number of Stories 2.00
Style CON-CONVENTIONAL
Foundation 04-P-FOOTING/CRWL-SP
Exterior 09-HARD-B/CEMENTBRD
Const Type
Heating 06-HEAT-PUMP
Air Cond
Plumbing Baths (Full):   4
Baths (Half):   0
Extra Fixtures:   0
Total Plumbing Fixtures:   12 
Bedrooms 5
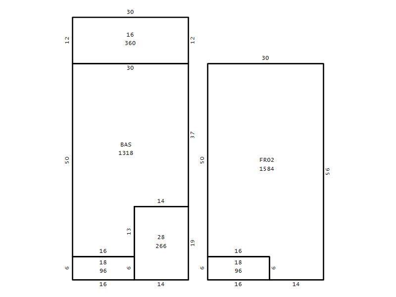
Main Body (SQFT) 1318
Year Built 2020
Additions 5
Effective Year 2020
Remodeled 0
Interior Adj.
Other Features
Building Total & Improvement Details

Grade C 100%
Percentage Complete 100
Total Adjusted Replacement Cost New $436,165
Physical Depreciation (% Bad) 0%
Depreciated Value $414,357
Economic Depreciation (% Bad) 0%
Functional Depreciation (% Bad) 0%
Total Depreciated Value $414,357
Market Area Factor 1.00
Building Value $414,357
Misc Improvements Value
Total Improvement Value $414,357

Assessed Land Value $83,025
   
Assessed Total Value $497,382



Addition Summary 
StoryTypeCodeArea
1.00 Res Frame 2Nd Flr FR02 1584
1.00 Frame Deck 16 360
1.00 Covered Porch 18 96
1.00 Garage 28 266
1.00 Covered Porch 18 96
 
Other Improvements 
 


Building Sketch
Photograph
Building Sketch Photo is unavailable for this parcel.
(Click sketch for bigger image)




Copyright © 2022 Durham County, North Carolina.