Building Summary

Data last updated on: 4/2/2026     Ownership current as of: 3/30/2026     Tax Year: 2026
REID 147729

PIN # 0729-21-3405

Location Address Property Description
104 HEMMINGWOOD DR WOODCREST/LT#04 PL:000117-000138
   
Property Owner Owner's Mailing Address
PEPPRIELL, ASHLEY ELIZABETH;ANDERSON, TIMOTHY JAMES
104 HEMMINGWOOD DR
DURHAM NC 27713
Parcel
Buildings
Misc Improvements
Land
Deeds
Notes
Sales
Photos
Map
Building Location Address
104 HEMMINGWOOD DR
Building Description
RESFR-RES-FRM-OR-EQ
Card   of  1
Bldg Type RESIDENTIAL
Units 1
Living Area (SQFT) 1464
Number of Stories 1.00
Style BTS-BI/TRI/SPLT-LEVL
Foundation 06-BASEMENT
Exterior 08-VINYL/ALUMINUM
Const Type
Heating 05-PACKAGE-HEAT/COOL
Air Cond
Plumbing Baths (Full):   2
Baths (Half):   1
Extra Fixtures:   0
Total Plumbing Fixtures:   8 
Bedrooms 3
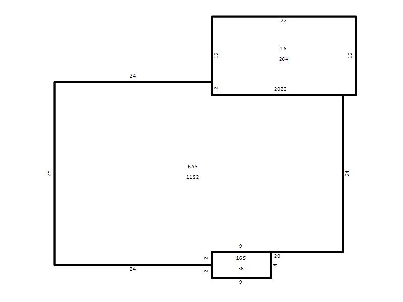
Main Body (SQFT) 1152
Year Built 1989
Additions 5
Effective Year 1989
Remodeled 0
Interior Adj.
Other Features
Building Total & Improvement Details

Grade C+5 105%
Percentage Complete 100
Total Adjusted Replacement Cost New $295,756
Physical Depreciation (% Bad) 0%
Depreciated Value $233,647
Economic Depreciation (% Bad) 0%
Functional Depreciation (% Bad) 0%
Total Depreciated Value $233,647
Market Area Factor 1.00
Building Value $233,647
Misc Improvements Value
Total Improvement Value $233,647

Assessed Land Value $158,080
   
Assessed Total Value $391,727



Addition Summary 
StoryTypeCodeArea
1.00 Frame Deck 16 264
1.00 Stoop 16S 36
1.00 Basement Garage BG 1
1.00 Unfinished Basement 10 264
1.00 Lower Living Area LL 312
 
Other Improvements 
 


Building Sketch
Photograph
Building Sketch Building Photo
(Click sketch for bigger image)




Copyright © 2022 Durham County, North Carolina.