Building Summary

Data last updated on: 4/2/2026     Ownership current as of: 3/30/2026     Tax Year: 2026
REID 147730

PIN # 0729-21-3485

Location Address Property Description
106 HEMMINGWOOD DR WOODCREST/LT#05 PL:000117-000138
   
Property Owner Owner's Mailing Address
PAYARES, JONATHAN;WOODWARD, COURTNEY
106 HEMMINGWOOD DR
DURHAM NC 27713
Parcel
Buildings
Misc Improvements
Land
Deeds
Notes
Sales
Photos
Map
Building Location Address
106 HEMMINGWOOD DR
Building Description
RESFR-RES-FRM-OR-EQ
Card   of  1
Bldg Type RESIDENTIAL
Units 1
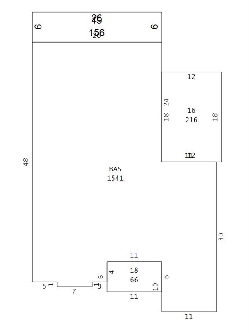
Living Area (SQFT) 1541
Number of Stories 1.00
Style RAN-RANCH
Foundation 04-P-FOOTING/CRWL-SP
Exterior 08-VINYL/ALUMINUM
Const Type
Heating 05-PACKAGE-HEAT/COOL
Air Cond
Plumbing Baths (Full):   2
Baths (Half):   1
Extra Fixtures:   0
Total Plumbing Fixtures:   8 
Bedrooms 3
Main Body (SQFT) 1541
Year Built 1989
Additions 3
Effective Year 1989
Remodeled 0
Interior Adj.
Other Features
Building Total & Improvement Details

Grade C+ 110%
Percentage Complete 100
Total Adjusted Replacement Cost New $313,368
Physical Depreciation (% Bad) 0%
Depreciated Value $247,561
Economic Depreciation (% Bad) 0%
Functional Depreciation (% Bad) 0%
Total Depreciated Value $247,561
Market Area Factor 1.00
Building Value $247,561
Misc Improvements Value $2,816
Total Improvement Value $250,377

Assessed Land Value $156,000
   
Assessed Total Value $406,377



Addition Summary 
StoryTypeCodeArea
1.00 Covered Porch 18 66
1.00 Frame Deck 16 216
1.00 Screen Porch 19 156
 
Other Improvements 
UnitsDescriptionItemCodeYear% BadValue
10x12 DIMENSIONS Garage Frame 1989 60 2816
 


Building Sketch
Photograph
Building Sketch Building Photo
(Click sketch for bigger image)




Copyright © 2022 Durham County, North Carolina.