Building Summary

Data last updated on: 4/2/2026     Ownership current as of: 3/30/2026     Tax Year: 2026
REID 147741

PIN # 0729-31-2413

Location Address Property Description
208 HEMMINGWOOD DR WOODCREST/LT#16 PL:000117-000138
   
Property Owner Owner's Mailing Address
BROWN, RICHARD TERRY;BROWN, JEAN M
208 HEMMINGWOOD DR
DURHAM NC 27713
Parcel
Buildings
Misc Improvements
Land
Deeds
Notes
Sales
Photos
Map
Building Location Address
208 HEMMINGWOOD DR
Building Description
RESFR-RES-FRM-OR-EQ
Card   of  1
Bldg Type RESIDENTIAL
Units 1
Living Area (SQFT) 1560
Number of Stories 1.00
Style BTS-BI/TRI/SPLT-LEVL
Foundation 06-BASEMENT
Exterior 08-VINYL/ALUMINUM
Const Type
Heating 05-PACKAGE-HEAT/COOL
Air Cond
Plumbing Baths (Full):   3
Baths (Half):   0
Extra Fixtures:   0
Total Plumbing Fixtures:   9 
Bedrooms 3
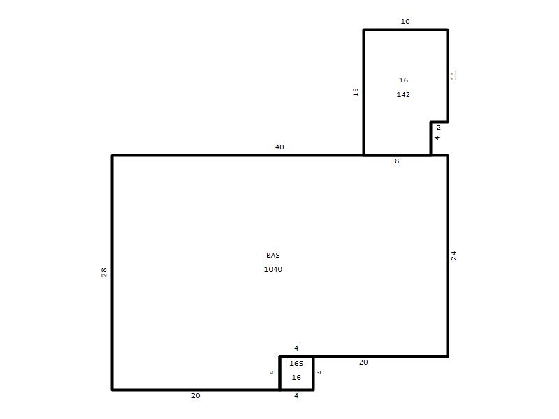
Main Body (SQFT) 1040
Year Built 1989
Additions 4
Effective Year 1989
Remodeled 0
Interior Adj.
Other Features
Building Total & Improvement Details

Grade C+ 110%
Percentage Complete 100
Total Adjusted Replacement Cost New $298,104
Physical Depreciation (% Bad) 0%
Depreciated Value $235,502
Economic Depreciation (% Bad) 0%
Functional Depreciation (% Bad) 0%
Total Depreciated Value $235,502
Market Area Factor 1.00
Building Value $235,502
Misc Improvements Value $510
Total Improvement Value $236,012

Assessed Land Value $154,700
   
Assessed Total Value $390,712



Addition Summary 
StoryTypeCodeArea
1.00 Frame Deck 16 142
1.00 Stoop 16S 16
1.00 Concrete Slab 16B 300
1.00 Lower Living Area LL 520
 
Other Improvements 
UnitsDescriptionItemCodeYear% BadValue
8x10 DIMENSIONS Storage Building 1989 75 510
 


Building Sketch
Photograph
Building Sketch Building Photo
(Click sketch for bigger image)




Copyright © 2022 Durham County, North Carolina.