Building Summary

Data last updated on: 4/2/2026     Ownership current as of: 3/30/2026     Tax Year: 2026
REID 147753

PIN # 0729-31-1685

Location Address Property Description
4 DANDYWOOD LN WOODCREST/LT#28 PL:000117-000138
   
Property Owner Owner's Mailing Address
CPIAMHERST SFR PROGRAM II RS LLC
3903 S CONGRESS AVE STE 40298
AUSTIN TX 78704
Parcel
Buildings
Misc Improvements
Land
Deeds
Notes
Sales
Photos
Map
Building Location Address
4 DANDYWOOD LN
Building Description
RESFR-RES-FRM-OR-EQ
Card   of  1
Bldg Type RESIDENTIAL
Units 1
Living Area (SQFT) 1443
Number of Stories 2.00
Style COL-COLONIAL
Foundation 03-CONTINOUS-SLAB
Exterior 09-HARD-B/CEMENTBRD
Const Type
Heating 05-PACKAGE-HEAT/COOL
Air Cond
Plumbing Baths (Full):   2
Baths (Half):   1
Extra Fixtures:   0
Total Plumbing Fixtures:   8 
Bedrooms 3
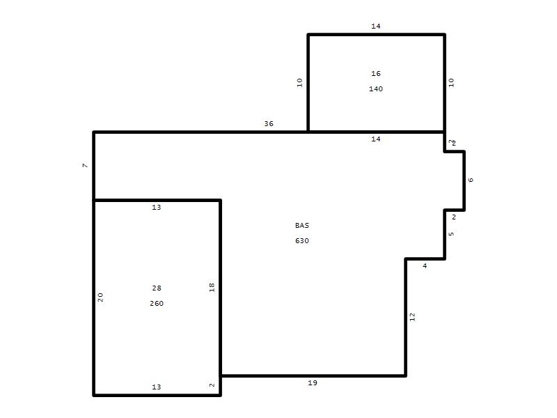
Main Body (SQFT) 630
Year Built 1992
Additions 5
Effective Year 1992
Remodeled 0
Interior Adj.
Other Features
Building Total & Improvement Details

Grade C+ 110%
Percentage Complete 100
Total Adjusted Replacement Cost New $294,263
Physical Depreciation (% Bad) 0%
Depreciated Value $235,410
Economic Depreciation (% Bad) 0%
Functional Depreciation (% Bad) 0%
Total Depreciated Value $235,410
Market Area Factor 1.00
Building Value $235,410
Misc Improvements Value $312
Total Improvement Value $235,722

Assessed Land Value $152,100
   
Assessed Total Value $387,822



Addition Summary 
StoryTypeCodeArea
1.00 Frame Deck 16 140
1.00 Garage 28 260
1.00 Res Frame 2Nd Flr FR02 553
1.00 Res Frm 2Nd Flr Over Garg FR02 260
1.00 Concrete Slab 16B 36
 
Other Improvements 
UnitsDescriptionItemCodeYear% BadValue
7x7 DIMENSIONS Storage Building 1992 75 312
 


Building Sketch
Photograph
Building Sketch Building Photo
(Click sketch for bigger image)




Copyright © 2022 Durham County, North Carolina.