Building Summary

Data last updated on: 4/2/2026     Ownership current as of: 3/30/2026     Tax Year: 2026
REID 147769

PIN # 0729-21-6600

Location Address Property Description
111 HEMMINGWOOD DR WOODCREST/LT#44 PL:000117-000138
   
Property Owner Owner's Mailing Address
DEVORE, LAUREL;DEVORE, DYLAN
111 HEMMINGWOOD DR
DURHAM NC 27713
Parcel
Buildings
Misc Improvements
Land
Deeds
Notes
Sales
Photos
Map
Building Location Address
111 HEMMINGWOOD DR
Building Description
RESFR-RES-FRM-OR-EQ
Card   of  1
Bldg Type RESIDENTIAL
Units 1
Living Area (SQFT) 1988
Number of Stories 1.00
Style BTS-BI/TRI/SPLT-LEVL
Foundation 06-BASEMENT
Exterior 08-VINYL/ALUMINUM
Const Type
Heating 05-PACKAGE-HEAT/COOL
Air Cond
Plumbing Baths (Full):   2
Baths (Half):   0
Extra Fixtures:   0
Total Plumbing Fixtures:   6 
Bedrooms 4
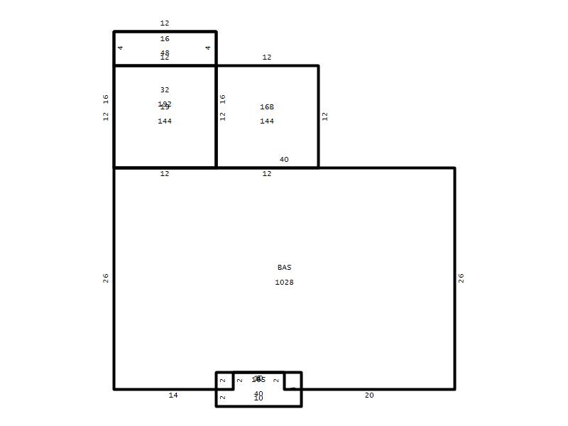
Main Body (SQFT) 1028
Year Built 1989
Additions 6
Effective Year 1989
Remodeled 0
Interior Adj.
Other Features
Building Total & Improvement Details

Grade C+ 110%
Percentage Complete 100
Total Adjusted Replacement Cost New $366,846
Physical Depreciation (% Bad) 0%
Depreciated Value $289,808
Economic Depreciation (% Bad) 0%
Functional Depreciation (% Bad) 0%
Total Depreciated Value $289,808
Market Area Factor 1.00
Building Value $289,808
Misc Improvements Value
Total Improvement Value $289,808

Assessed Land Value $167,700
   
Assessed Total Value $457,508



Addition Summary 
StoryTypeCodeArea
1.00 Frame Deck 16 48
1.00 Concrete Slab 16B 144
1.00 Stoop 16S 40
1.00 Screen Porch 19 144
1.00 Storage Utility 32 192
1.00 Lower Living Area LL 960
 
Other Improvements 
 


Building Sketch
Photograph
Building Sketch Building Photo
(Click sketch for bigger image)




Copyright © 2022 Durham County, North Carolina.