Building Summary

Data last updated on: 4/2/2026     Ownership current as of: 3/30/2026     Tax Year: 2026
REID 148193

PIN # 0729-11-0084

Location Address Property Description
121 WOODCROFT PKWY PROP-WOODCROFT COMMERCIAL /LT#A PL:000116-000151
   
Property Owner Owner's Mailing Address
JASR FAMILY INVESTMENTS LLC
121 WOODCROFT PKWY
DURHAM NC 27713
Parcel
Buildings
Misc Improvements
Land
Income
Deeds
Notes
Sales
Photos
Map
Building Location Address
121 WOODCROFT PKWY
Card   of  1        Section   of  2
Building Details

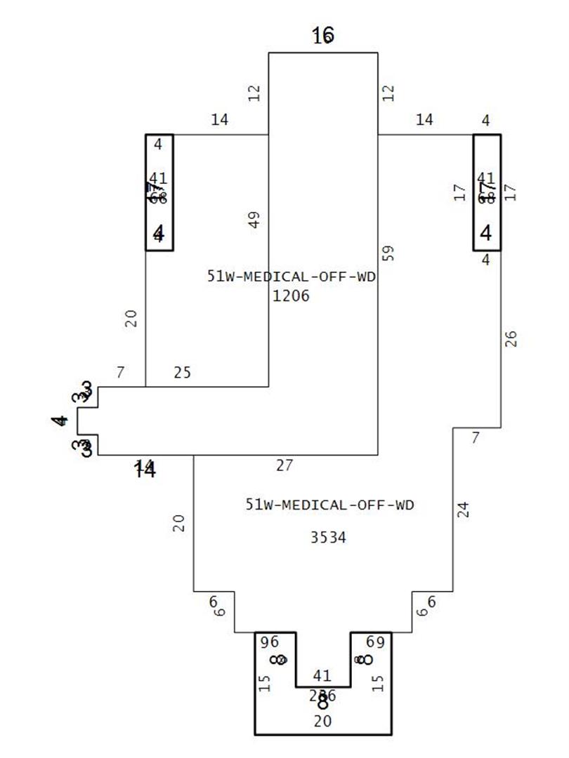
Building Name CONVERTED DWLG WOOD
Primary Occupancy Type COMMERCIAL
Primary Occupancy 51W-MEDICAL-OFF-WD
Primary Class W
Primary Quality B+5
Year Built 1992
Effective Year 1992
Physical Depreciation (Rating) CEW-CDU PERCENTAGE
Physical Depreciation (% Bad) 21.00%
Economic Depreciation (% Bad) 0%
Functional Depreciation (% Bad) 0%
Gross Leasable Area (SQFT) 4740
Remodeled Year
Total Stories

Section Details

Occupancy Type COMMERCIAL


Class W
Depreciation CEW-CDU PERCENTAGE
Depreciation 21%
Heat 15-HEAT-&-AC-COM
Occupancy 51W-MEDICAL-OFF-WD
Quality B+5
Exterior Walls N/A-EXT-WALL
Building Total & Improvement Details

Total Adjusted Replacement Cost New $1,633,817
Physical Depreciation (% Bad) 21.00%
Depreciated Value $1,290,716
Economic Depreciation (% Bad) 0%
Functional Depreciation (% Bad) 0%
Total Depreciated Value $1,290,716
Market Area Factor 1.00
Building Value $1,290,716
Misc Improvements Value
Total Improvement Value $1,290,716

Assessed Land Value $452,200
   
Assessed Total Value $991,493


Addition Summary 
StoryTypeCodeArea
1.00 Canopy Commercial 41 68
1.00 Canopy Commercial 41 236
1.00 Canopy Commercial 41 68
 
Other Improvements 
 


Building Sketch
Photograph
Building Sketch Building Photo
(Click sketch for bigger image)




Copyright © 2022 Durham County, North Carolina.