Building Summary

Data last updated on: 4/1/2026     Ownership current as of: 3/27/2026     Tax Year: 2026
REID 148253

PIN # 0719-90-8493

Location Address Property Description
500 17C WOODCROFT PKWY WDCRFT/HOMEPLACE AT STEEP LECHASE/PH:03/LT#17C TYP PL:000107-000012
   
Property Owner Owner's Mailing Address
JENSEN, JASMINE MOON;JENSEN, COOPER TOWNE
500 17C WOODCROFT PKWY
DURHAM NC 27713
Parcel
Buildings
Misc Improvements
Land
Deeds
Notes
Sales
Photos
Map
Building Location Address
500 WOODCROFT PKWY
Building Description
TINMS-TWNHS-INT-U-MS
Card   of  1
Bldg Type RESIDENTIAL
Units 1
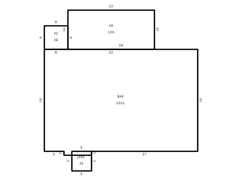
Living Area (SQFT) 1021
Number of Stories 1.00
Style TWN-TWNHS/ATTC-RW-TP
Foundation 04-P-FOOTING/CRWL-SP
Exterior 02-BRICK
Const Type
Heating 05-PACKAGE-HEAT/COOL
Air Cond
Plumbing Baths (Full):   2
Baths (Half):   0
Extra Fixtures:   0
Total Plumbing Fixtures:   6 
Bedrooms 2
Main Body (SQFT) 1021
Year Built 1984
Additions 3
Effective Year 1984
Remodeled 0
Interior Adj.
Other Features
Building Total & Improvement Details

Grade B 120%
Percentage Complete 100
Total Adjusted Replacement Cost New $266,382
Physical Depreciation (% Bad) 0%
Depreciated Value $205,114
Economic Depreciation (% Bad) 0%
Functional Depreciation (% Bad) 0%
Total Depreciated Value $205,114
Market Area Factor 1.00
Building Value $205,114
Misc Improvements Value
Total Improvement Value $205,114

Assessed Land Value $75,000
   
Assessed Total Value $280,114



Addition Summary 
StoryTypeCodeArea
1.00 Frame Deck 16 220
1.00 Stoop 16S 25
1.00 Storage Utility 32 36
 
Other Improvements 
 


Building Sketch
Photograph
Building Sketch Building Photo
(Click sketch for bigger image)




Copyright © 2022 Durham County, North Carolina.