Building Summary

Data last updated on: 4/1/2026     Ownership current as of: 3/27/2026     Tax Year: 2026
REID 148374

PIN # 0729-01-3900

Location Address Property Description
200 WOODCROFT PKWY WDCRFT/HMEPL/ARROWD TW/PH :04/LT#45C TYPE-09/BN/FY PL:000108-000172
   
Property Owner Owner's Mailing Address
GRAVLEY, SARAH ELIZABETH
200 WEST WOODCROFT PKWY 45-C
DURHAM NC 27713
Parcel
Buildings
Misc Improvements
Land
Deeds
Notes
Sales
Photos
Map
Building Location Address
200 WOODCROFT PKWY
Building Description
TINMS-TWNHS-INT-U-MS
Card   of  1
Bldg Type RESIDENTIAL
Units 1
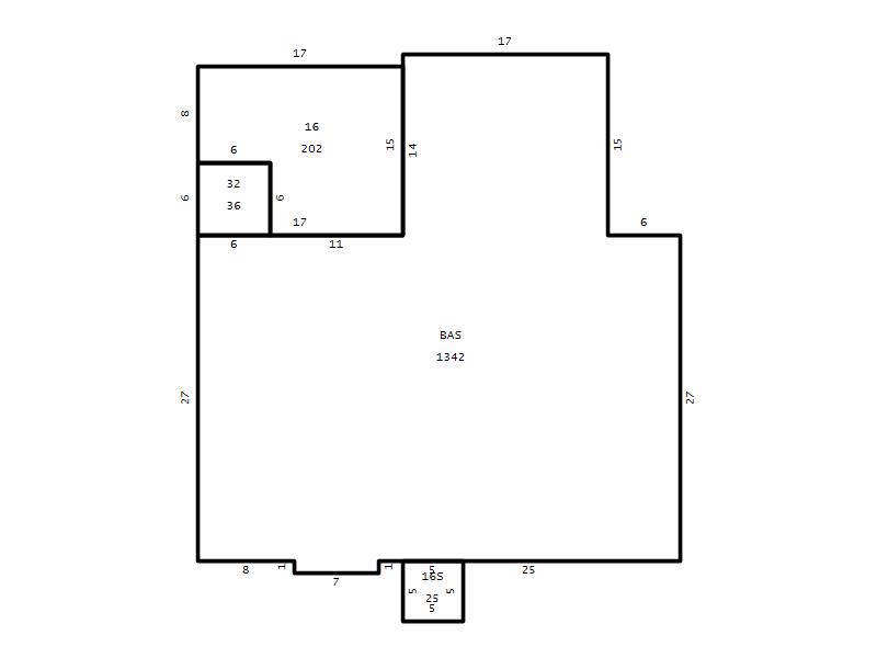
Living Area (SQFT) 1342
Number of Stories 1.00
Style TWN-TWNHS/ATTC-RW-TP
Foundation 04-P-FOOTING/CRWL-SP
Exterior 02-BRICK
Const Type
Heating 05-PACKAGE-HEAT/COOL
Air Cond
Plumbing Baths (Full):   2
Baths (Half):   0
Extra Fixtures:   0
Total Plumbing Fixtures:   6 
Bedrooms 3
Main Body (SQFT) 1342
Year Built 1984
Additions 3
Effective Year 1984
Remodeled 0
Interior Adj.
Other Features
Building Total & Improvement Details

Grade B 120%
Percentage Complete 100
Total Adjusted Replacement Cost New $315,214
Physical Depreciation (% Bad) 0%
Depreciated Value $242,715
Economic Depreciation (% Bad) 0%
Functional Depreciation (% Bad) 0%
Total Depreciated Value $242,715
Market Area Factor 1.00
Building Value $242,715
Misc Improvements Value
Total Improvement Value $242,715

Assessed Land Value $75,000
   
Assessed Total Value $317,715



Addition Summary 
StoryTypeCodeArea
1.00 Frame Deck 16 202
1.00 Stoop 16S 25
1.00 Storage Utility 32 36
 
Other Improvements 
 


Building Sketch
Photograph
Building Sketch Building Photo
(Click sketch for bigger image)




Copyright © 2022 Durham County, North Carolina.