Building Summary

Data last updated on: 4/2/2026     Ownership current as of: 3/30/2026     Tax Year: 2026
REID 148609

PIN # 0729-20-7756

Location Address Property Description
114 LAKESHORE DR WOODLAKE/FOUR SEASONS/PH: 1/BLK:A/LT#08 PL:000109-000076
   
Property Owner Owner's Mailing Address
IH3 PROPERTY NORTH CAROLINA LP
PO BOX 4900
SCOTTSDALE AZ 85261
Parcel
Buildings
Misc Improvements
Land
Deeds
Notes
Sales
Photos
Map
Building Location Address
114 LAKESHORE DR
Building Description
RESFR-RES-FRM-OR-EQ
Card   of  1
Bldg Type RESIDENTIAL
Units 1
Living Area (SQFT) 1760
Number of Stories 2.00
Style CAP-CAPE-COD
Foundation 04-P-FOOTING/CRWL-SP
Exterior 09-HARD-B/CEMENTBRD
Const Type
Heating 05-PACKAGE-HEAT/COOL
Air Cond
Plumbing Baths (Full):   2
Baths (Half):   1
Extra Fixtures:   0
Total Plumbing Fixtures:   8 
Bedrooms 4
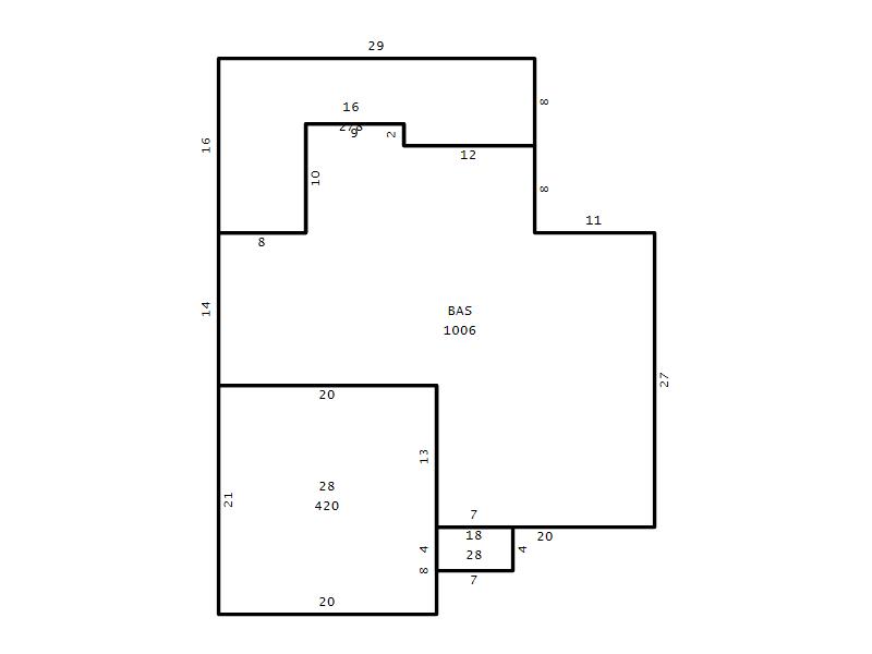
Main Body (SQFT) 1006
Year Built 1989
Additions 5
Effective Year 1989
Remodeled 0
Interior Adj.
Other Features
Building Total & Improvement Details

Grade B+15 135%
Percentage Complete 100
Total Adjusted Replacement Cost New $440,992
Physical Depreciation (% Bad) 0%
Depreciated Value $317,514
Economic Depreciation (% Bad) 0%
Functional Depreciation (% Bad) 0%
Total Depreciated Value $317,514
Market Area Factor 1.00
Building Value $317,514
Misc Improvements Value
Total Improvement Value $317,514

Assessed Land Value $211,120
   
Assessed Total Value $528,634



Addition Summary 
StoryTypeCodeArea
1.00 Frame Deck 16 278
1.00 Covered Porch 18 28
1.00 Garage 28 420
1.00 Res Frame 2Nd Flr FR02 544
1.00 Res Frm 2Nd Flr Over Garg FR02 210
 
Other Improvements 
 


Building Sketch
Photograph
Building Sketch Building Photo
(Click sketch for bigger image)




Copyright © 2022 Durham County, North Carolina.