Building Summary

Data last updated on: 4/2/2026     Ownership current as of: 3/30/2026     Tax Year: 2026
REID 148663

PIN # 0729-21-4157

Location Address Property Description
13 CEDAR HILL DR WDLAKE/4-SEASONS/PH:01/BL K:B/LT#18 PL:000185-000017
   
Property Owner Owner's Mailing Address
CHACE, RYAN ISAAC;NELSON, HEATHER
13 CEDAR HILL DR
DURHAM NC 27713
Parcel
Buildings
Misc Improvements
Land
Deeds
Notes
Sales
Photos
Map
Building Location Address
13 CEDAR HILL DR
Building Description
RESFR-RES-FRM-OR-EQ
Card   of  1
Bldg Type RESIDENTIAL
Units 1
Living Area (SQFT) 1404
Number of Stories 2.00
Style CAP-CAPE-COD
Foundation 04-P-FOOTING/CRWL-SP
Exterior 09-HARD-B/CEMENTBRD
Const Type
Heating 05-PACKAGE-HEAT/COOL
Air Cond
Plumbing Baths (Full):   2
Baths (Half):   0
Extra Fixtures:   0
Total Plumbing Fixtures:   6 
Bedrooms 3
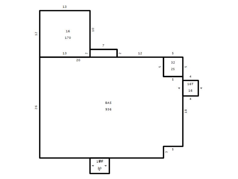
Main Body (SQFT) 936
Year Built 1986
Additions 5
Effective Year 1986
Remodeled 0
Interior Adj.
Other Features
Building Total & Improvement Details

Grade B+15 135%
Percentage Complete 100
Total Adjusted Replacement Cost New $346,120
Physical Depreciation (% Bad) 0%
Depreciated Value $242,284
Economic Depreciation (% Bad) 0%
Functional Depreciation (% Bad) 0%
Total Depreciated Value $242,284
Market Area Factor 1.00
Building Value $242,284
Misc Improvements Value $624
Total Improvement Value $242,908

Assessed Land Value $149,500
   
Assessed Total Value $392,408



Addition Summary 
StoryTypeCodeArea
1.00 Frame Deck 16 170
1.00 Terrace/Raised Patio 16T 16
1.00 Storage Utility 32 25
1.00 Terrace/Raised Patio 16T 20
1.00 Res Frame 2Nd Flr FR02 468
 
Other Improvements 
UnitsDescriptionItemCodeYear% BadValue
10x10 DIMENSIONS Storage Building 1986 75 624
 


Building Sketch
Photograph
Building Sketch Building Photo
(Click sketch for bigger image)




Copyright © 2022 Durham County, North Carolina.