Building Summary

Data last updated on: 4/2/2026     Ownership current as of: 3/30/2026     Tax Year: 2026
REID 148667

PIN # 0729-21-2117

Location Address Property Description
21 CEDAR HILL DR WDLAKE/4-SEASONS/PH:01/BL K:B/LT#22 PL:000185-000017
   
Property Owner Owner's Mailing Address
SERAFIN, DONALD STEPHEN;SERAFIN, SARAH LYND
21 CEDAR HILL DR
DURHAM NC 27713
Parcel
Buildings
Misc Improvements
Land
Deeds
Notes
Sales
Photos
Map
Building Location Address
21 CEDAR HILL DR
Building Description
RESFR-RES-FRM-OR-EQ
Card   of  1
Bldg Type RESIDENTIAL
Units 1
Living Area (SQFT) 1606
Number of Stories 2.00
Style COL-COLONIAL
Foundation 04-P-FOOTING/CRWL-SP
Exterior 09-HARD-B/CEMENTBRD
Const Type
Heating 05-PACKAGE-HEAT/COOL
Air Cond
Plumbing Baths (Full):   2
Baths (Half):   1
Extra Fixtures:   0
Total Plumbing Fixtures:   8 
Bedrooms 3
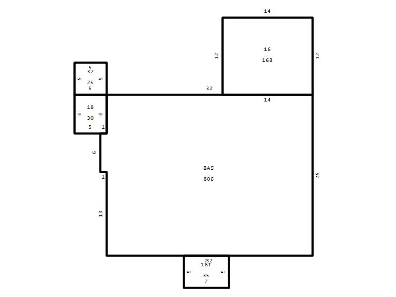
Main Body (SQFT) 806
Year Built 1989
Additions 5
Effective Year 1989
Remodeled 0
Interior Adj.
Other Features
Building Total & Improvement Details

Grade B+15 135%
Percentage Complete 100
Total Adjusted Replacement Cost New $383,706
Physical Depreciation (% Bad) 0%
Depreciated Value $276,268
Economic Depreciation (% Bad) 0%
Functional Depreciation (% Bad) 0%
Total Depreciated Value $276,268
Market Area Factor 1.00
Building Value $276,268
Misc Improvements Value $510
Total Improvement Value $276,778

Assessed Land Value $149,500
   
Assessed Total Value $426,278



Addition Summary 
StoryTypeCodeArea
1.00 Frame Deck 16 168
1.00 Terrace/Raised Patio 16T 35
1.00 Covered Porch 18 30
1.00 Storage Utility 32 25
1.00 Res Frame 2Nd Flr FR02 800
 
Other Improvements 
UnitsDescriptionItemCodeYear% BadValue
10x8 DIMENSIONS Storage Building 1989 75 510
 


Building Sketch
Photograph
Building Sketch Building Photo
(Click sketch for bigger image)




Copyright © 2022 Durham County, North Carolina.