Building Summary

Data last updated on: 4/2/2026     Ownership current as of: 3/30/2026     Tax Year: 2026
REID 148677

PIN # 0729-21-6255

Location Address Property Description
8 CEDAR HILL DR WDLAKE/4-SEASONS/PH:01/BL K:B/LT#32 PL:000185-000019
   
Property Owner Owner's Mailing Address
ALLEN, MELANIE
8 CEDAR HILL DR
DURHAM NC 27713
Parcel
Buildings
Misc Improvements
Land
Deeds
Notes
Sales
Photos
Map
Building Location Address
8 CEDAR HILL DR
Building Description
RESFR-RES-FRM-OR-EQ
Card   of  1
Bldg Type RESIDENTIAL
Units 1
Living Area (SQFT) 1940
Number of Stories 2.00
Style COL-COLONIAL
Foundation 06-BASEMENT
Exterior 09-HARD-B/CEMENTBRD
Const Type
Heating 05-PACKAGE-HEAT/COOL
Air Cond
Plumbing Baths (Full):   2
Baths (Half):   1
Extra Fixtures:   0
Total Plumbing Fixtures:   8 
Bedrooms 3
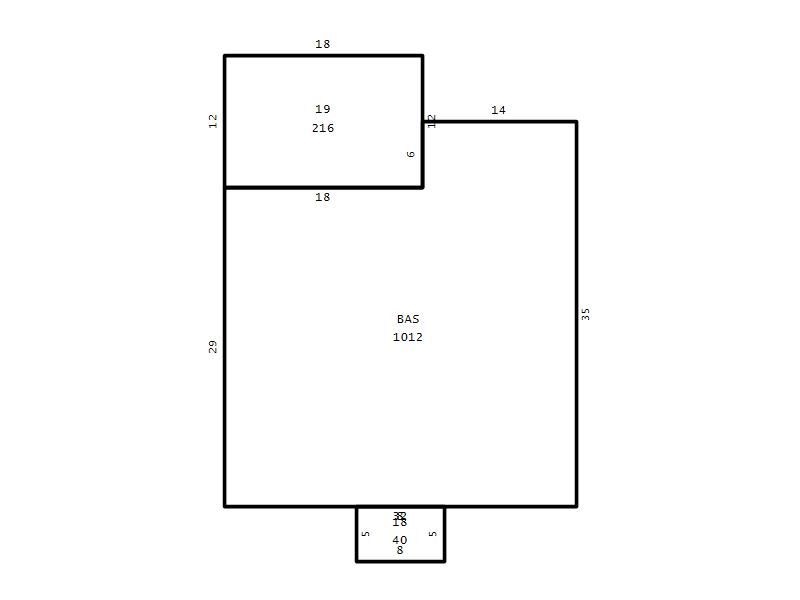
Main Body (SQFT) 1012
Year Built 1990
Additions 5
Effective Year 1990
Remodeled 0
Interior Adj.
Other Features
Building Total & Improvement Details

Grade B+15 135%
Percentage Complete 100
Total Adjusted Replacement Cost New $489,875
Physical Depreciation (% Bad) 0%
Depreciated Value $352,710
Economic Depreciation (% Bad) 0%
Functional Depreciation (% Bad) 0%
Total Depreciated Value $352,710
Market Area Factor 1.00
Building Value $352,710
Misc Improvements Value
Total Improvement Value $352,710

Assessed Land Value $161,200
   
Assessed Total Value $513,910



Addition Summary 
StoryTypeCodeArea
1.00 Covered Porch 18 40
1.00 Screen Porch 19 216
1.00 Res Frame 2Nd Flr FR02 928
1.00 Basement Garage BG 2
1.00 Unfinished Basement 10 928
 
Other Improvements 
 


Building Sketch
Photograph
Building Sketch Building Photo
(Click sketch for bigger image)




Copyright © 2022 Durham County, North Carolina.