Building Summary

Data last updated on: 4/2/2026     Ownership current as of: 3/30/2026     Tax Year: 2026
REID 148810

PIN # 0729-30-8028

Location Address Property Description
5 FLAGSTAFF CT WDLAKE/DUNMORE-PARCEL E/P H:02/SEC:02/LT#38 PL:000130-000123
   
Property Owner Owner's Mailing Address
SWARTZ, DAVID D;BELL, KATHERINE
5 FLAGSTAFF CT
DURHAM NC 27713
Parcel
Buildings
Misc Improvements
Land
Deeds
Notes
Sales
Photos
Map
Building Location Address
5 FLAGSTAFF CT
Building Description
RESFR-RES-FRM-OR-EQ
Card   of  1
Bldg Type RESIDENTIAL
Units 1
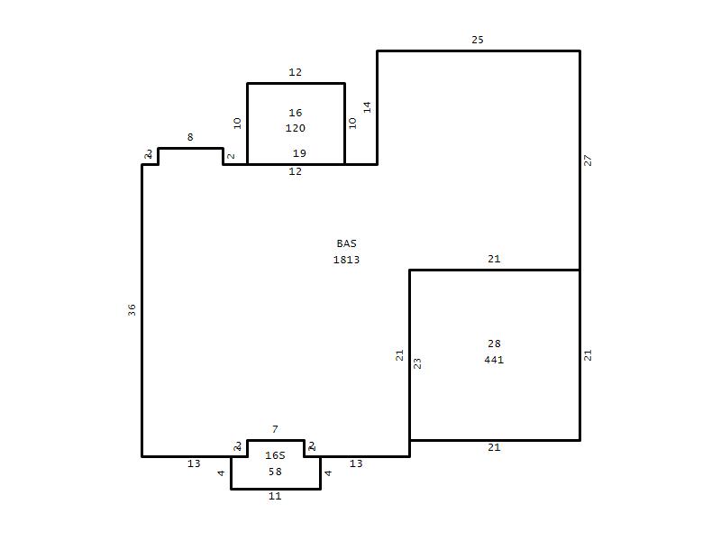
Living Area (SQFT) 1813
Number of Stories 1.00
Style CAP-CAPE-COD
Foundation 04-P-FOOTING/CRWL-SP
Exterior 08-VINYL/ALUMINUM
Const Type
Heating 05-PACKAGE-HEAT/COOL
Air Cond
Plumbing Baths (Full):   2
Baths (Half):   1
Extra Fixtures:   0
Total Plumbing Fixtures:   8 
Bedrooms 3
Main Body (SQFT) 1813
Year Built 1994
Additions 4
Effective Year 1994
Remodeled 0
Interior Adj.
Other Features
Building Total & Improvement Details

Grade B+15 135%
Percentage Complete 100
Total Adjusted Replacement Cost New $511,770
Physical Depreciation (% Bad) 0%
Depreciated Value $301,944
Economic Depreciation (% Bad) 0%
Functional Depreciation (% Bad) 0%
Total Depreciated Value $301,944
Market Area Factor 1.00
Building Value $301,944
Misc Improvements Value $52
Total Improvement Value $301,996

Assessed Land Value $167,700
   
Assessed Total Value $469,696



Addition Summary 
StoryTypeCodeArea
1.00 Frame Deck 16 120
1.00 Stoop 16S 58
1.00 Garage 28 441
1.00 Attic Unfinished 08 831
 
Other Improvements 
UnitsDescriptionItemCodeYear% BadValue
4x4 DIMENSIONS Concrete Slab 1994 55 52
 


Building Sketch
Photograph
Building Sketch Building Photo
(Click sketch for bigger image)




Copyright © 2022 Durham County, North Carolina.