Building Summary

Data last updated on: 4/2/2026     Ownership current as of: 3/30/2026     Tax Year: 2026
REID 148857

PIN # 0728-49-7756

Location Address Property Description
5803 WALNUT COVE DR WOODLAKE/CANDLEWOOD/PH:02 /LT#38 PL:000131-000223
   
Property Owner Owner's Mailing Address
FISHER, CYNTHIA ASTRIAB;FEELEY, ALEXANDRA CANAL
7 MINE BLUFF CT
DURHAM NC 27713
Parcel
Buildings
Misc Improvements
Land
Deeds
Notes
Sales
Photos
Map
Building Location Address
5803 WALNUT COVE DR
Building Description
RESFR-RES-FRM-OR-EQ
Card   of  1
Bldg Type RESIDENTIAL
Units 1
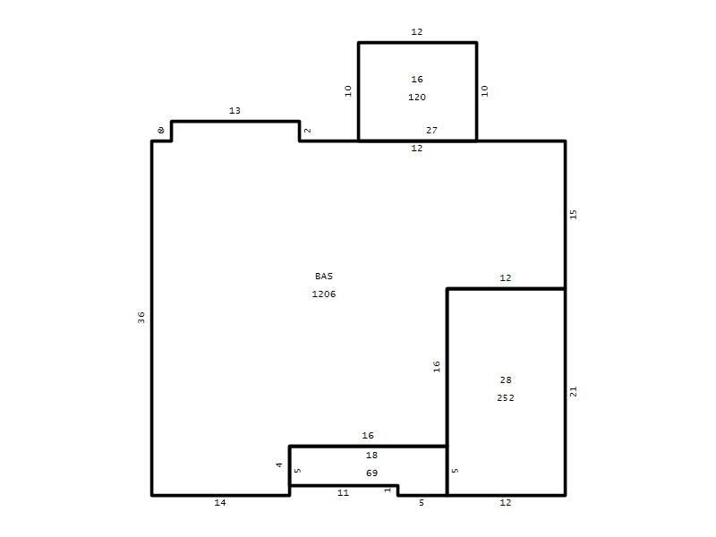
Living Area (SQFT) 1206
Number of Stories 1.00
Style RAN-RANCH
Foundation 04-P-FOOTING/CRWL-SP
Exterior 09-HARD-B/CEMENTBRD
Const Type
Heating 05-PACKAGE-HEAT/COOL
Air Cond
Plumbing Baths (Full):   2
Baths (Half):   0
Extra Fixtures:   0
Total Plumbing Fixtures:   6 
Bedrooms 3
Main Body (SQFT) 1206
Year Built 1995
Additions 3
Effective Year 1995
Remodeled 0
Interior Adj.
Other Features
Building Total & Improvement Details

Grade B+15 135%
Percentage Complete 100
Total Adjusted Replacement Cost New $335,199
Physical Depreciation (% Bad) 0%
Depreciated Value $251,399
Economic Depreciation (% Bad) 0%
Functional Depreciation (% Bad) 0%
Total Depreciated Value $251,399
Market Area Factor 1.00
Building Value $251,399
Misc Improvements Value
Total Improvement Value $251,399

Assessed Land Value $152,100
   
Assessed Total Value $403,499



Addition Summary 
StoryTypeCodeArea
1.00 Frame Deck 16 120
1.00 Covered Porch 18 69
1.00 Garage 28 252
 
Other Improvements 
 


Building Sketch
Photograph
Building Sketch Building Photo
(Click sketch for bigger image)




Copyright © 2022 Durham County, North Carolina.